

Dous Immobilien GmbH
Frau Pamela Lorenz
004 ···
Nr. anzeigenPreise & Kosten
Provision für Käufer
3,57 % inkl. MwSt.
Lage
Das vielseitige Dahlenburg liegt westlich am Naturpark Elbhöhen-Wendland und bietet sowohl städtische als auch ländliche Vorzüge. So finden sich diverse Einkaufsmöglichkeiten, Grund- und weiterführende Schulen, Ärzte und einige Restaurants direkt im Ortskern Dahlenburgs. Sehnt man sich hingegen nach Ruhe und Erholung, so lädt...
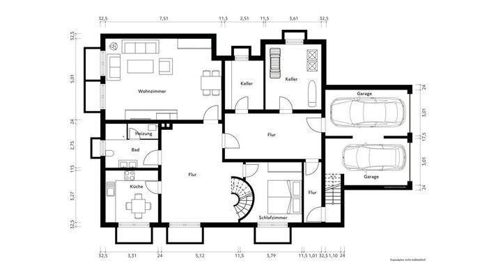
Das Haus
Kategorie
Einfamilienhaus
Baujahr
1972
Energie & Heizung
Warum sehe ich diese Anzeige? – Du siehst diese Anzeige basierend auf Ihrer Navigation auf unserer Website und den Suchkriterien, die du verwendet hast.
Energieausweistyp
Bedarfsausweis
Gebäudetyp
Wohngebäude
Baujahr laut Energieausweis
1972
Wesentliche Energieträger
GAS
Gültigkeit
bis 21.09.2035
Effizienzklasse
F
Endenergiebedarf
188,80 kWh/(m²·a)
Details
Objektbeschreibung
In einer der begehrtesten Wohnlagen von Dahlenburg präsentiert sich dieses großzügige Ein- bis Zweifamilienhaus als vielseitig nutzbare und zugleich äußerst attraktive Immobilie. Mit einer Gesamtwohnfläche von rund 260 m² bietet das Haus genügend Raum für Familien, Mehrgenerationenwohnen oder eine rentable...
Anbieter der Immobilie

Online-ID: 2mk3y55
Referenznummer: W-K-LG-25-050-P-1
Finde Angebote wie dieses
Hier geht es zu unserem Impressum, den Allgemeinen Geschäftsbedingungen, den Hinweisen zum Datenschutz und nutzungsbasierter Online-Werbung.