

Einfamilienhaus zum Kauf99000 €664 €/m²5 Zimmer • 149 m² • 1.339 m² Grundstück
99000 €
664 €/m²
5 Zimmer • 149 m² • 1.339 m² Grundstück
**Preisreduzierung und Handwerker aufgepasst** Einfamilienhaus zu verkaufen
Merkmale
- Bezug: sofort
- 1.339 m² Grundstück
- Kein Keller
- Terrasse
- 2 Stellplätze: 2 Außen-Stellplätze
- Kabelanschluss
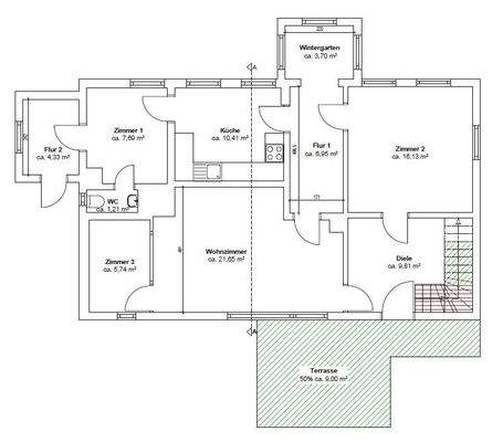
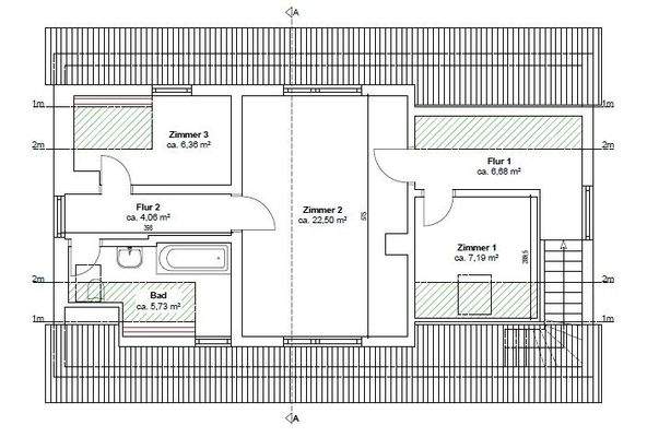
Grundrisse
Grundrisse
1 / 2
Realisiere Dein Projekt
Bausubstanz und Energie
Möchtest du Details zum Energieverbrauch?

- Baujahr1920
- Zustand der Immobilierenovierungsbedürftig / sanierungsbedürftig
- HeizungsartZentralheizung
- EnergieträgerFlüssiggas
Preisdetails
Kaufpreis
99000 €
664,43 €/m²
Provision für Käufer
3,57 % Käuferprovision inkl. MwSt.
Weitere Preisinformationen
2 Stellplätze
Geschätzte Gesamtkosten
109.464 €1
Kaufpreis
99.000 €
Kaufnebenkosten
10.464 €
2Notarkosten (1,5%)
1.485 €
Grunderwerbsteuer (5%)
4.950 €
Provision für Käufer (3,57%)
3.534 €
Grundbucheintrag (0,5%)
495 €
1Der angezeigte Wert ist eine automatisch berechnete Schätzung von immowelt.
2Bei den Angaben handelt es sich um ortsübliche Werte. Individuelle Kosten können abweichen.
Lage

Zernien (29499)
Der Anbieter hat die genaue Adresse nicht freigegeben
Weitere Informationen
Weitere Services
Lust auf eine Besichtigung?
Eine Frage zur Immobilie?
Über den Anbieter
Stadtkoppel 41-43, 21337 Lüneburg
3 Jahre Partnerschaft
Frau Anika HoffmannDein Kontakt
Online-ID: 256HP9698CZ8
Referenznummer: AH-1740

Lüneburger Heide Immobilien GmbH
Bewertung: 4,5 von 5 Sternen
Wie zufrieden bist du mit dieser Seite (nicht mit der Immobilie selbst)?

