

IFC Immobiliengesellschaft mbH
Herr Paul-Ludwig Blümel
034 ···
Nr. anzeigenPreise & Kosten
Provision für Käufer
Die Provision beträgt 3,5 % vom Kaufpreis (zzgl. der geltenden MwSt.).
Das Haus
Kategorie
Einfamilienhaus
Geschosse
2 Geschosse
Baujahr
1987
Energie & Heizung
Warum sehe ich diese Anzeige? – Du siehst diese Anzeige basierend auf Ihrer Navigation auf unserer Website und den Suchkriterien, die du verwendet hast.
Energieausweistyp
Verbrauchsausweis
Gebäudetyp
Wohngebäude
Baujahr laut Energieausweis
1987
Wesentliche Energieträger
Flüssiggas
Gültigkeit
19.12.2025 bis 19.12.2035
Effizienzklasse
C
Endenergieverbrauch
83,40 kWh/(m²·a)
Weitere Energiedaten
Energieträger
Gas
Heizungsart
offener Kamin
Details
Ausstattung
Ausstattung
Raumaufteilung:
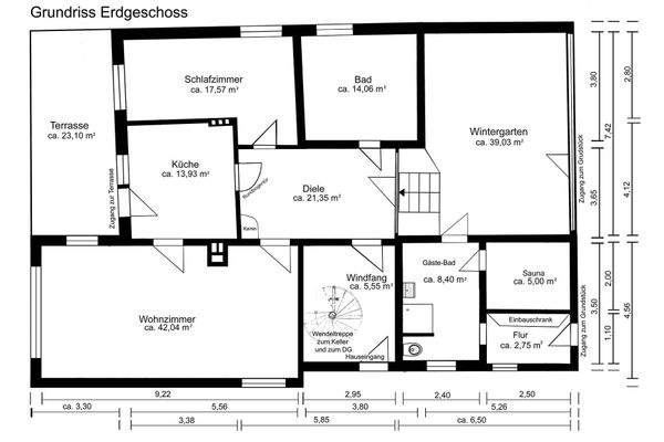
Erdgeschoss:
Wohnzimmer mit Essbereich, Küche mit Zugang zur Terrasse, Wintergarten mit Zugang zum Grundstück und zur Sauna, Schlafzimmer, Bad, Diele, Eingangsdiele
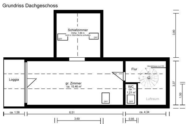
Dachgeschoss:
Schlafzimmer, Durchgangszimmer, Gäste-WC
Unter- / Kellergeschoss:
vollständig...
Weitere Informationen
Extras:
- Kamin im Wohnzimmer
- Sauna, Tauchbecken und Bad im Keller
- Doppelgarage (ca. 45 m²) mit elektrischem Tor (ca. 2021)
- Sommerpavillon
- Naturteich und Schwimmteich
Erschließung:
Strom, Wasser, Flüssiggas, biologische Kläranlage, Brunnenanschluss, SAT-Anlage, Telefon...
Dokumente
Anbieter der Immobilie

Online-ID: 2mk585s
Referenznummer: 2035
Finde Angebote wie dieses
Hier geht es zu unserem Impressum, den Allgemeinen Geschäftsbedingungen, den Hinweisen zum Datenschutz und nutzungsbasierter Online-Werbung.