Version: 8.24.0Navigation überspringen
ohne-makler.net - Immobilien selbst vermarkten
380 €
1,5 Zimmer  •  49 m²  •  3. Geschoss

Wohnung zur Miete
380 €
1,5 Zimmer  •  49 m²  •  3. Geschoss

Sehr schöne renovierte Dachgeschoss-Wohnung 1,5 ZKB

1 Zimmer, Küche mit Essbereich, Tageslichtbad mit Wanne.

Haus wurde auf Flüssiggas umgestellt. Neue Brennwertheizung Baujahr 2022!!

Kostenfreier Parkplatz.

Merkmale

  • Bezug: sofort
  • Dachgeschoss, 3. Geschoss
  • Außen-Stellplatz
  • Garten
  • Bodenbelag: Fliesen
Garten, Fliesen

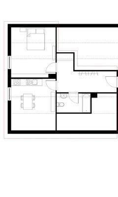
Grundrisse

Grundrisse
1 / 1

Realisiere Dein Projekt

Bausubstanz und Energie

Energieausweis

B
  • Baujahr1962
  • Zustand der ImmobilieGepflegt
  • HeizungsartZentralheizung
  • EnergieträgerGas
MediumRectangleTop

Mietkosten

Kaltmiete
7,76 €/m²
380 €
Nebenkosten
200 €
Heizkosten
in Warmmiete enthalten
Kaution
1160 €
Weitere Preisinformationen
1 Stellplatz
Nettokaltmiete: 380,00 EUR

Lage

address-icon
SterbfritzSinntal-Sterbfritz (36391)
Der Anbieter hat die genaue Adresse nicht freigegeben
Sinntal-Sterbfritz in ruhiger Lage.
Infrastruktur (im Umkreis von 5 km):
Apotheke, Lebensmittel-Discount, Allgemeinmediziner, Kindergarten, Grundschule, Öffentliche Verkehrsmittel

Weitere Informationen

Sonstiges Heizungsart: Zentralheizung
Energieträger: Gas

***Vergabe bevorzugt an solvente Mieter mit gesicherter Finanzlage/geregeltem Einkommen***

Eine Mindestmietdauer von 2-3 Jahren ist gewünscht.

Haustiere nach Absprache..

Makleranfragen nicht erwünscht. Nach § 7 UWG sind unaufgeforderte Kontaktaufnahmen durch Makler ohne ausdrückliche Einwilligung des Empfängers verboten!

ohne-makler (OM) ist weder Anbieter noch Vermittler der Immobilie. OM betreibt eine Plattform für Immobilieneigentümer, die unter anderem die gleichzeitige Veröffentlichung einzelner Inserate auf mehreren Immobilienportalen ermöglicht. Die Inhalte dieser Inserate werden ausschließlich von Dritten verantwortet. Für die Richtigkeit, Vollständigkeit oder Rechtmäßigkeit der Angaben übernimmt OM keine Haftung. Hinweise auf mögliche Rechtsverstöße können jederzeit gemeldet werden und werden nach Prüfung umgehend bearbeitet. Stichworte Stellplatz vorhanden, Anzahl der Schlafzimmer: 1, Anzahl der Badezimmer: 1, Bundesland: Hessen

Weitere Services

Lust auf eine Besichtigung?
Eine Frage zur Immobilie?
Nachricht hinzufügen
Mit der Nutzung der oben angegebenen Telefonnummer oder durch Klicken auf „Kontaktieren“ akzeptierst Du die Allgemeinen Nutzungsbedingungen, denen Du jederzeit widersprechen kannst. Weitere Informationen zum Datenschutz

Über den Anbieter

Humboldtstr. 25 A, 21509 Glinde
partner badge
Partnerschaft
Privat vom EigentümerDein Kontakt
Keine Telefonnummer hinterlegt
Keine Telefonnummer hinterlegt
Online-ID: 2mk645m
Referenznummer: 293160
ohne-makler.net - Immobilien selbst vermarkten
ohne-makler.net - Immobilien selbst vermarkten
Nachricht hinzufügen
Mit der Nutzung der oben angegebenen Telefonnummer oder durch Klicken auf „Kontaktieren“ akzeptierst Du die Allgemeinen Nutzungsbedingungen, denen Du jederzeit widersprechen kannst. Weitere Informationen zum Datenschutz
MediumRectangleTop
MediumRectangleBottom
MediumRectangleTop
Wie zufrieden bist du mit dieser Seite (nicht mit der Immobilie selbst)?