
Crozilla.com
Eurovilla
+38 ···
Nr. anzeigenPreise & Kosten
Provision für Käufer
Bitte beachte, das Angebot kann bei Vertragsabschluss die Zahlung einer Provision beinhalten. Weitere Informationen erhältst Du vom Anbieter.
Die Immobilie
Zu diesem Angebot wurden vom Anbieter keine weiteren Daten hinterlegt. Für weitere Informationen bitte den Anbieter kontaktieren.
Nach Informationen fragenDetails
Objektbeschreibung
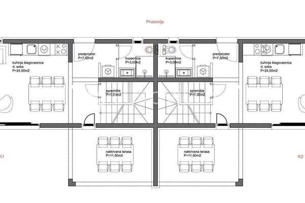
Moderne kuce u nizu s bazenom i jacuzzijem na krovnoj terasi i hortikulturalno uredenim vrtom u 2.redu do mora, na svega 15min voznje do Zadra. 3 cetverosobne kuce cca 110m2 i 2 trosobne kuce cca 95m2. Kuca 2 - cetverosobna kuca cca 110m2 sastoji se od prizemlja(kuhinja s blagovaonicom i dnevnim boravkom, kupaonica, toalet...
Weitere Informationen
Stichworte
Anzahl der Schlafzimmer: 3, 1 Etagen
Anbieter der Immobilie
Crozilla.com
Nova cesta 60, 10000 ZAGREB
Online-ID: 2mk795y
Referenznummer: 14844791_14
Finde Angebote wie dieses
Hier geht es zu unserem Impressum, den Allgemeinen Geschäftsbedingungen, den Hinweisen zum Datenschutz und nutzungsbasierter Online-Werbung.