
McMakler GmbH
Ihr McMakler Team
080 ···
Nr. anzeigenPreise & Kosten
Provision für Käufer
Die Provision i.H.v. 3,57 % inkl. MwSt. ist mit Kaufvertragsbeurkundung fällig, sofern der Verkaufspreis über 83.000,00 € liegt.
Liegt der Verkaufspreis dagegen bei/unter 83. Weitere Informationen siehe Provisionshinweis.
Abschreibung/Anlage
Denkmalschutz-Afa
Lage
Lage: Idyllische Feldrandlage bietet entspannte Atmosphäre für Ruhesuchende und Familien
Nahversorgung: Sämtliche Geschäfte und Dienstleister in einem Umkreis von ca. 6,5 km
Bildung und Betreuung: Schulen und Kindertagesstätten in den umliegenden Ortsteilen und Gemeinden ansässig
Anbindung...
Das Renditeobjekt
Baujahr
1918
Bezug
ab sofort
Energie & Heizung
Warum sehe ich diese Anzeige? – Du siehst diese Anzeige basierend auf Ihrer Navigation auf unserer Website und den Suchkriterien, die du verwendet hast.
Energieausweis: für diesen Gebäudetyp nicht notwendig
Details
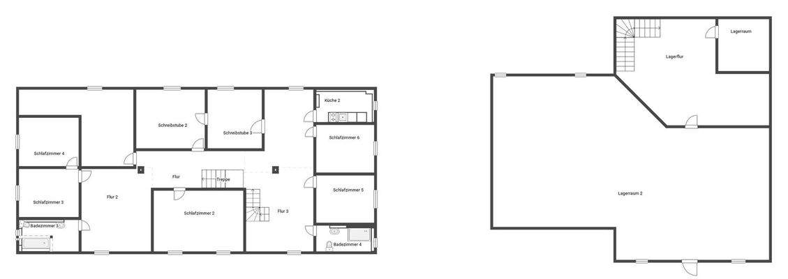
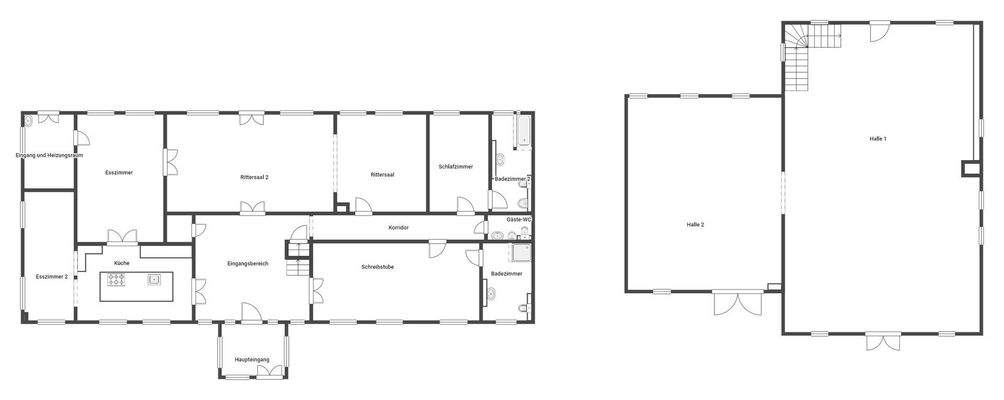
Objektbeschreibung
Objektnr: 1059314
Das perfekte Zuhause für all jene, die sich gemeinsam mit ihrer Familie wohlfühlen möchten, stellt das hier angebotene, denkmalgeschützte Rittmeister-Anwesen dar. Der Standort überzeugt besonders durch seine ruhige Feldrandlage. Hier locken Entspannung und ausführliche Spaziergänge durch die Natur...
Ausstattung
+ In einer ruhigen Umgebung in Feldrandlage von Parchim, hervorragend für eine Selbstnutzung
+ Insgesamt ca. 7.170 m² großes Grundstück inklusive Wald und Garagen
+ Das Objekt präsentiert sich in einem neuwertigen Zustand mit Denkmalschutz
+ Komfort entsteht durch eine luxuriöse Ausstattung inkl. 2 Einbauküchen...
Weitere Informationen
Provisionshinweis
Die Provision i.H.v. 3,57 % inkl. MwSt. ist mit Kaufvertragsbeurkundung fällig, sofern der Verkaufspreis über 83.000,00 € liegt.
Liegt der Verkaufspreis dagegen bei/unter 83.000,00 €, ist die fest vereinbarte Mindestprovision i.H.v. mind. 5.950,00 € inkl. MwSt. mit Kaufvertragsbeurkundung fällig...
Anbieter der Immobilie
McMakler GmbH
Am Postbahnhof 17, 10243 Berlin
Online-ID: 2mk7t5t
Referenznummer: 2bd3e80550
Finde Angebote wie dieses
Hier geht es zu unserem Impressum, den Allgemeinen Geschäftsbedingungen, den Hinweisen zum Datenschutz und nutzungsbasierter Online-Werbung.