

Uwe Tesch - Handelsvertretung der Bien - Zenker GmbH
Herr Uwe Tesch
+49 ···
Nr. anzeigenPreise & Kosten
Provision für Käufer
Bitte beachte, das Angebot kann bei Vertragsabschluss die Zahlung einer Provision beinhalten. Weitere Informationen erhältst Du vom Anbieter.
Lage
Hamburg als Standort Ihres neuen Zuhauses verspricht eine exzellente Lage mit vielfältigen Möglichkeiten zur Freizeitgestaltung sowie hervorragende infrastrukturelle Anbindungen - insbesondere im Hamburger Stadtteil Eidelstedt. In unmittelbarer Nähe befinden sich zahlreiche Bildungs- und Gesundheitseinrichtungen sowie...
Das Haus
Kategorie
Einfamilienhaus
Energie & Heizung
Warum sehe ich diese Anzeige? – Du siehst diese Anzeige basierend auf Ihrer Navigation auf unserer Website und den Suchkriterien, die du verwendet hast.
Weitere Energiedaten
Haustyp
KfW 40
Details
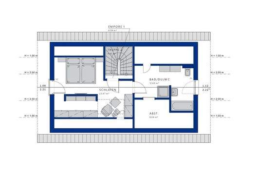
Objektbeschreibung
Das BALANCE 175 ist ein herausragendes Beispiel für die Kunst des modernen Fertighausbaus. Mit seinen drei Etagen bietet es eine bemerkenswerte Flexibilität in der Raumplanung, die perfekt auf die individuellen Wünsche der Bewohner abgestimmt werden kann. Im Erdgeschoss entfaltet sich das Herzstück des Hauses: ein großzügiger...
Ausstattung
Dieses außergewöhnliche Heim bietet sechs geräumige Zimmer auf einer beeindruckenden Wohnfläche von 180 m². Die Aufteilung ist perfekt durchdacht: Fünf Schlafzimmer bieten Rückzugsorte für die ganze Familie oder Gäste, während drei stilvolle Badezimmer Komfort und Privatsphäre garantieren. Diese großzügige Raumgestaltung...
Weitere Informationen
Sonstiges
Der hier angeben Wert zur zu zahlenden Grunderwerbsteuer ist ein vom Portalbetreiber automatisierter Wert, der nicht der Realität entspricht, da die Grunderwerbsteuer nur auf den im Gesamtangebot einberechneten Grundstückswert berechnet wird.
Inkl. PV - Anlage und Speicher für die eigene...
Dokumente
Anbieter der Immobilie
Uwe Tesch - Handelsvertretung der Bien - Zenker GmbH
Versmannstraße 22 (Hafen City), 20547 Hamburg

Online-ID: 2mk7z5f
Referenznummer: 12258-EKNI048
Finde Angebote wie dieses
Hier geht es zu unserem Impressum, den Allgemeinen Geschäftsbedingungen, den Hinweisen zum Datenschutz und nutzungsbasierter Online-Werbung.