
ohne-makler.net - Immobilien selbst vermarkten
Privat vom Eigentümer
Kontaktiere den Anbieter schriftlich, es ist keine Telefonnummer hinterlegt.
Preise & Kosten
Provision für Käufer
provisionsfrei
Lage
Der Stadtbezirk Aalen-Ebnat liegt malerisch eingebettet in einer muldenartigen Vertiefung des vorderen Härtsfeldes.
Geografische Lage:
Ebnat befindet sich auf der Hochfläche der Schwäbischen Alb, genauer gesagt im Härtsfeld, einem Teilgebiet Ostwürttembergs. Die durchschnittliche Höhe liegt bei etwa 609 Metern...
Das Haus
Kategorie
Einfamilienhaus
Baujahr
2014
Bezug
nach Absprache
Energie & Heizung
Warum sehe ich diese Anzeige? – Du siehst diese Anzeige basierend auf Ihrer Navigation auf unserer Website und den Suchkriterien, die du verwendet hast.
Energieausweistyp
Bedarfsausweis
Gebäudetyp
Wohngebäude
Endenergiebedarf
13,00 kWh/(m²·a)
Weitere Energiedaten
Heizungsart
Fußbodenheizung, Luft-/Wasser-Wärmepumpe
Details
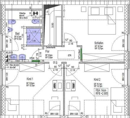
Objektbeschreibung
Modernes bezugsfähiges Einfamilienhaus in sehr ruhiger Lage am Ortsrand von Ebnat, einem Teilort von Aalen, mit großer Doppelgarage mit Dachboden auf großem Grundstück
Fertigstellung 2016
Die Wohnfläche im EG und OG beträgt durch die Gaube und die Kniestockerhöhung ca. 115m². Im UG sind weitere 16m² zusätzlich...
Ausstattung
Terrasse, Garten, Keller, Duschbad, Einbauküche, Gäste-WC, Barrierefrei, Fliesen, Sonstiges (s. Text)
Bemerkungen:
Ausstattung:
? Ebenerdiger Eingang
? Garderobe
? Große Doppelgarage ca.8x5m mit großem Dachboden
? Hörmann Sektionaltor und Antrieb
? Extra Kellereingang
? Sicherheitspaket...
Preisinformation
4 Stellplätze
1 Garagenstellplatz
Weitere Informationen
Sonstiges
Heizungsart: Fußbodenheizung
Energieträger: Luft-/Wasserwärme
Makleranfragen nicht erwünscht. Nach § 7 UWG sind unaufgeforderte Kontaktaufnahmen durch Makler ohne ausdrückliche Einwilligung des Empfängers verboten!
ohne-makler (OM) ist weder Anbieter noch Vermittler der Immobilie. OM betreibt...
Anbieter der Immobilie
ohne-makler.net - Immobilien selbst vermarkten
Humboldtstr. 25 A, 21509 Glinde
Privat vom Eigentümer
Dein Ansprechpartner
Kontaktiere den Anbieter schriftlich, es ist keine Telefonnummer hinterlegt.
Online-ID: 2mk8n5a
Referenznummer: 406663
Finde Angebote wie dieses
Hier geht es zu unserem Impressum, den Allgemeinen Geschäftsbedingungen, den Hinweisen zum Datenschutz und nutzungsbasierter Online-Werbung.