
ohne-makler.net - Immobilien selbst vermarkten
Privat vom Eigentümer
Kontaktiere den Anbieter schriftlich, es ist keine Telefonnummer hinterlegt.
Preise & Kosten
nicht in Warmmiete enthalten
Kaution
2.250,00
Warum sehe ich diese Anzeige? – Du siehst diese Anzeige basierend auf Ihrer Navigation auf unserer Website und den Suchkriterien, die du verwendet hast.
Lage
Die Wohnung liegt in einer ruhigen Nebenstrasse im Zentrum von Hildesheim.
Sämtliche Verkehrsmittel, Schulen und Einkaufsmöglichkeiten liegen in unmittelbarer Nähe. In der Umgebung sind mehrere Parkmöglichkeiten gegeben.
Infrastruktur (im Umkreis von 5 km):
Apotheke, Lebensmittel-Discount, Allgemeinmediziner...
Die Wohnung
Wohnungslage
4. Geschoss (Dachgeschoss)
Bezug
sofort
Wohnanlage
Energie & Heizung
Warum sehe ich diese Anzeige? – Du siehst diese Anzeige basierend auf Ihrer Navigation auf unserer Website und den Suchkriterien, die du verwendet hast.
Energieausweistyp
Verbrauchsausweis
Gebäudetyp
Wohngebäude
Effizienzklasse
C
Endenergieverbrauch
97,00 kWh/(m²·a)
Weitere Energiedaten
Energieträger
Gas
Heizungsart
Zentralheizung
Details
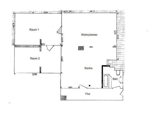
Objektbeschreibung
Helle sonnige Dachgeschosswohnung in zentraler Lage von Hildesheim. Durch die strassenabgewandte Seite mit einem wunderschönen Ausblick über die Dächer von Hildesheim bietet die Wohnung absolute Ruhe. Der Wohnbereich besitzt große Atelierfenster zur Südseite und ist deshalb besonders hell gestaltet.
Die Wohnung besteht aus...
Ausstattung
Keller, Vollbad, Einbauküche, Laminat, Fliesen
Bemerkungen:
- Laminat in allen Wohnbereichen
- Einbauküche mit Herd, Backofen und Spülmaschine
- Wannenbad mit Fenster, Fliesen in italienisch-toskanischem Stil mit Muschelfries
- Waschmaschine
- Laminat in allen Wohnräumen
- Gegensprechanlage
Preisinformation
Nettokaltmiete: 750,00 EUR
Weitere Informationen
Sonstiges
Heizungsart: Zentralheizung
Energieträger: Gas
Erstkontakt bitte per E-Mail mit Angabe Ihere Telefon-Nr.
Machen Sie bitte Angaben über Ihre private und berufliche Situation einschließlich Nettoverdienst und Anzahl Personen.
Makleranfragen nicht erwünscht. Nach § 7 UWG sind unaufgeforderte...
Anbieter der Immobilie
ohne-makler.net - Immobilien selbst vermarkten
Humboldtstr. 25 A, 21509 Glinde
Privat vom Eigentümer
Dein Ansprechpartner
Kontaktiere den Anbieter schriftlich, es ist keine Telefonnummer hinterlegt.
Online-ID: 2mk9a5k
Referenznummer: 403652
Finde Angebote wie dieses
Hier geht es zu unserem Impressum, den Allgemeinen Geschäftsbedingungen, den Hinweisen zum Datenschutz und nutzungsbasierter Online-Werbung.