
LWI Immobilien
016 ···
Nr. anzeigenPreise & Kosten
Provision für Käufer
Maclercourtage 4,76 % incl. gesetzlicher Mehrwertsteuer vom Kaufpreis
Lage
Die Wohnung in Baiersdorf befindet sich in Best Lage, die sowohl Komfort als auch eine enge Anbindung an das öffentliche Verkehrsnetz bietet. Die nächstgelegene Busstation Erlanger Straße ist nur 510 Meter entfernt, während die Zugstation Baiersdorf mit der Linie S1 in 870 Metern erreichbar ist. Für Ihre täglichen Einkäufe...
Die Wohnung
Wohnungslage
1. Geschoss (Dachgeschoss)
Bezug
2027
Wohnanlage
Energie & Heizung
Warum sehe ich diese Anzeige? – Du siehst diese Anzeige basierend auf Ihrer Navigation auf unserer Website und den Suchkriterien, die du verwendet hast.
Weitere Energiedaten
Haustyp
KfW 55
Heizungsart
Fußbodenheizung, Luft-/Wasser-Wärmepumpe
Details
Weitere Informationen
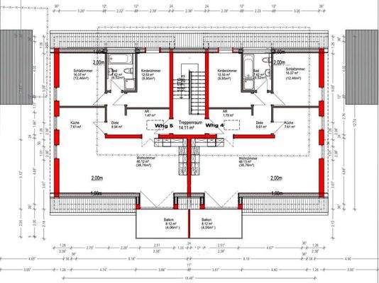
Moderne 3 Zimmer Wohnung
Die abgebildete Darstellung des Grundrisses beinhaltet beide Dachgeschosswohnungen die zum Verkauf stehen, der Kaufpreis bezieht sich jedoch nur auf eine Wohneinheit.
Desweiteren enstehen im Erdgeschoss noch 3 weitere Wohneinheiten.
( Neubau eines 5 Familienwohnhauses )
Entdecken Sie...
Anbieter der Immobilie
Online-ID: 2mkb75v
Finde Angebote wie dieses
Hier geht es zu unserem Impressum, den Allgemeinen Geschäftsbedingungen, den Hinweisen zum Datenschutz und nutzungsbasierter Online-Werbung.