Freie 3-Zi-Eigentumswohnung in HB-Walle mit Mansardenzimmer
Leere 3-Zimmer-ETW + Büro im DG in der Almatastraße 15. Die Wohnanlage Almatastr.11-21 (und 23-27) im Stadtteil Walle wurde ab 1959 erbaut und im Jahre 1997 in Wohneigentum umgewandelt (Beamten-Baugesellschaft Bremen BBG). Sie besteht aus 51 Wohneinheiten in 9 Hauseingängen. Die Häuser sind 3-geschossig (EG, 1.-2.OG,) und voll unterkellert. Auf den Dachböden sind Abstellräume und Wäschetrockenplätze. Kein Fahrstuhl.
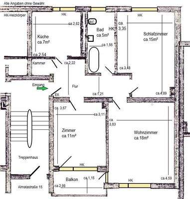
Zum Verkauf steht hier eine 3-Zimmer-Wohnung im 2.Obergeschoss. Das geräumige Wohnzimmer und das 3.Zimmer sind zur Süd-West-Seite ausgerichtet, beide haben Zugang auf den schönen Sonnenbalkon. Das Schlafzimmer, Küche und Bad jeweils mit Fenster liegen zur Hofseite. Das 4. Zimmer auf dem Dachboden direkt über der Wohnung gehört ebenfalls dazu. Dieses ist nur vom Treppenhaus begehbar. Eine Nutzung als Büro wäre denkbar. Die angegebene Wohnfläche von ca. 78m² ist inkl. des 4.Zimmers. Zwei Kellerräume und eine Abstellmöglichkeit auf dem Dachboden runden das Platzangebot ab.
Das monatliche Hausgeld (zahlbar vom Wohnungseigentümer) beträgt laut Wirtschaftsplan 375 EUR, beinhaltet u. a. Heizung (z.T. Verbrauchsabhängig), Wasser, Pflege der Außenanlage, Winterdienst, Müll, Gebäudeversicherung, Anteil für die Instandhaltungsrückstellung, Verwaltergebühr. Der Stromverbrauch, u.a. für Warmwasser, wird vom Nutzer direkt mit dem Versorger abgerechnet und ist im Hausgeld also nicht enthalten.
Miteigentumsanteil 220 / 10.000stel. Es befinden sich keine Pkw-Stellplätze auf dem Grundstück. Grundstücksgröße ca. 6.400 m². Das Wohnungsgrundbuch ist lastenfrei in Abt.III. In Abt.II ist eine beschränkte persönliche Dienstbarkeit (Druckrohrleitungsrecht). Die WEG-Verwaltung erfolgt durch ecowo, Tiefer 8, 28195 Bremen.
Haben Sie Interesse? Dann senden Sie die Objekt-Id 39964-17 per WhatsApp oder Signal an 01525 681 3907, per Telegram an VonoviaVerkauf oder per Threema an *VONOVIA.
Details zur Datenverarbeitung bei Vonovia finden SIe unter www.vonovia.de
Merkmale
Bezug: sofort
2. Geschoss
Kelleranteil
Balkon
Bad mit Fenster
Der verbrauchsorientierte Energieausweis aus dem Jahr 2018 nennt einen Endenergieverbrauch von 142 kWh/(m²*a), Klasse E, ohne WW, Erdgas L, Bj. Bebäude 1959, Bj. Heizungsanlage 2004. Warmwasser über elektr. Durchlauferhitzer.
Den Zustand der Wohnung entnehmen Sie bitte den Fotos. Kunststoff-Iso-Fenster. Das Laminat ist alt. Die Darstellungen von Küche und Bad sind Animationen, so könnten die Räume nach einer Modernisierung (nach dem Verkauf) aussehen. Im Gemeinschaftseigentum des Hauses wurden im Laufe der Jahre die Balkone saniert. Angaben laut Verwaltung. Die Wohnung wird im Ist-Zustand verkauft, NICHT vermietet. Es ist kein Mietkauf möglich.
Grundrisse
Grundrisse
1 / 3
Realisiere Dein Projekt
Bausubstanz und Energie
Energieausweis
E
Baujahr1959
HeizungsartZentralheizung
EnergieträgerGas
Preisdetails
Kaufpreis
196000 €196.000 €
2.493,96 €/m²
Hausgeld
375 €375 €
Provision für Käufer
provisionsfrei
Geschätzte Gesamtkosten
209.720 €1
Kaufpreis
196.000 €
Kaufnebenkosten
13.720 €
2
Notarkosten (1,5%)
2.940 €
Grunderwerbsteuer (5%)
9.800 €
Grundbucheintrag (0,5%)
980 €
1Der angezeigte Wert ist eine automatisch berechnete Schätzung von immowelt.
2Bei den Angaben handelt es sich um ortsübliche Werte. Individuelle Kosten können abweichen.
Lage
Almatastraße 15, Walle, Bremen (28219)
Die Almatastraße ist eine ruhige Anliegerstraße, zwischen der Waller Heerstraße und der Waller Straße. Die Haltestelle Waller Straße der Straßenbahnlinien 2 und 10 (BSAG) ist dicht bei. Von dort erreichen Sie in rund 20 Minuten die Bremer City (Domsheide). Zum Bahnhof Bremen-Walle können Sie zu Fuß gehen. Auf die Autobahn 27 gelangen Sie über B6 und die Anschlußstelle Überseestadt.
Weitere Informationen
Sonstiges
=== Energieträger laut Energieausweis: Gas === Hinweise darüber, wie die Vonovia Ihre personenbezogenen Daten als Interessent verarbeitet, erhalten Sie unter www.vonovia.de/datenschutzinformation. Alle Angaben in diesem Exposé wurden sorgfältig und so vollständig wie möglich gemacht. Gleichwohl kann das Vorhandensein von Fehlern nicht ausgeschlossen werden. Die Angaben in diesem Exposé erfolgen daher ohne jede Gewähr. Maßgeblich sind die im Kaufvertrag geschlossenen Vereinbarungen. Soweit die Grundrissgrafiken Maßangaben und Einrichtungen enthalten, wird auch für diese jegliche Haftung ausgeschlossen. Ebenso weisen wir darauf hin, dass die Grundrissgrafiken nicht immer maßstabsgetreu sind. Besichtigungen nur nach vorheriger Terminabsprache mit Ihrem Ansprechpartner, Herrn Rittmeyer, möglich. Verkaufsgespräche sind ausschließlich über Ihren Ansprechpartner zu führen. Preisänderungen bleiben vorbehalten. Der Kauf ist für den Käufer provisionsfrei.
Stichworte
Anzahl Balkone: 1, 3 Etagen