

Kern-Haus AG Niederlassung Dresden
Frau Nicole Ulbricht
035 ···
Nr. anzeigenPreise & Kosten
Provision für Käufer
provisionsfrei
Lage
In ruhiger und familienfreundlicher Lage von 01458 Medingen erwartet Sie dieses attraktive Baugrundstück mit einer Größe von ca. 830 m². Mit einer Grundstücksbreite von etwa 40 Metern und einer Tiefe von rund 20 Metern bietet das Areal ideale Voraussetzungen für die Verwirklichung individueller Wohnträume. Dank der...
Das Haus
Kategorie
Einfamilienhaus
Baujahr
2026
Energie & Heizung
Warum sehe ich diese Anzeige? – Du siehst diese Anzeige basierend auf Ihrer Navigation auf unserer Website und den Suchkriterien, die du verwendet hast.
Energieausweistyp
Bedarfsausweis
Gebäudetyp
Wohngebäude
Effizienzklasse
A+
Endenergiebedarf
19,36 kWh/(m²·a)
Weitere Energiedaten
Energieträger
Elektro
Heizungsart
Fußbodenheizung, Zentralheizung
Details
Objektbeschreibung
Etos steht für eine anspruchsvolle und zeitlose Architektur, angelehnt an den Bauhausstil. Der moderne Baukörper mit Flachdach schirmt den Lebensraum zur Eingangs- und Straßenseite ab - die Rückseite öffnet sich mit großen Fenstern dem Garten.
Die offenen Wohnräume sind durch bodentiefe Fenster lichtdurchflutet. Die...
Ausstattung
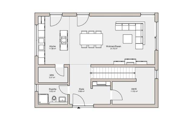
4 Zimmer, Küche, Diele, Dusche, Flur, Bad, Speisekammer, Ankleide, Hauswirtschaftsraum
Das gezeigte Traumhaus im Überblick:
+ Schlüsselfertiges Massivhaus im Sinne der Ausstattungsbeschreibung "Edition 25"
+ Zukunftsorientierte Energieausstattung in Form einer Luft-Wasser-Wärmepumpe und Fußbodenheizung sowie...
Weitere Informationen
Sonstiges
Kern-Haus
Kern-Haus baut individuelle und massive Architektenhäuser zu einem attraktiven Preis-Leistungs-Verhältnis - und das bereits mit einer Erfahrung seit 1980. Bei Kern-Haus erhalten Sie unter anderem 10 Jahre Gewährleistung auf die wesentlichen Bauleistungen, bis zu 24 Monate Preissicherheit sowie...
Anbieter der Immobilie
Kern-Haus AG Niederlassung Dresden
Am Sandberg 2, 01468 Moritzburg

Online-ID: 2mkcc58
Referenznummer: WDD 10408
Finde Angebote wie dieses
Hier geht es zu unserem Impressum, den Allgemeinen Geschäftsbedingungen, den Hinweisen zum Datenschutz und nutzungsbasierter Online-Werbung.