
Aigner Immobilien GmbH
Herr Sascha Gazawi
+49 ···
Nr. anzeigenPreise & Kosten
Provision für Käufer
3,57 % inkl. MwSt.
Die Käuferprovision beträgt 3,57% inkl. gesetzlicher Mehrwertsteuer vom wirtschaftlichen Kaufpreis. Unsere Angebote erfolgen freibleibend und unverbindlich. Irrtum und Zwischenverkauf bleiben vorbehalten.
Lage
Die Gemeinde Neubiberg, die kleinste Universitätsstadt Deutschlands, grenzt an den südlichen Stadtrand Münchens und gehört zum Landkreis München. Sie ist optimal an den Nahverkehr der Landeshauptstadt angebunden, sodass man mit der S-Bahn (Linie S5) die Münchner Innenstadt in etwa 20 Minuten erreicht. Die angebotene...
Das Haus
Kategorie
Doppelhaushälfte
Baujahr
1989
Bezug
nach Vereinbarung
Energie & Heizung
Warum sehe ich diese Anzeige? – Du siehst diese Anzeige basierend auf Ihrer Navigation auf unserer Website und den Suchkriterien, die du verwendet hast.
Energieausweistyp
Bedarfsausweis
Gebäudetyp
Wohngebäude
Baujahr laut Energieausweis
1989
Gültigkeit
bis 13.10.2035
Endenergiebedarf
154,97 kWh/(m²·a)
Weitere Energiedaten
Energieträger
Öl
Heizungsart
Zentralheizung
Details
Objektbeschreibung
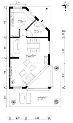
Diese charmante Doppelhaushälfte aus dem Baujahr 1989 bietet auf ca. 128 m² Wohnfläche ein behagliches Zuhause für Paare oder kleine Familien. Das Haus steht auf einem ca. 345 m² großen Grundstück in absolut ruhiger Lage und überzeugt durch seinen besonderen Charme sowie die liebevolle Pflege der Eigentümer.
Schon beim...
Ausstattung
* WEG geteilt
* Ruhige Wohnlage
* Ziegelbauweise mit Isolierverglasung
* Moderne Einbauküche mit hochwertigen Miele-/ Gaggenau Geräten
* Süd-/ Westterrasse mit Sonnensegel
* Ostterrasse mit Markise
* Garten mit idyllischem Gartenteich
* Zwei modernisierte Badezimmer (Ober- und Untergeschoss) mit Duravit...
Preisinformation
1 Garagenstellplatz
Weitere Informationen
Sonstiges
Baujahr: 1989
Energieeffizienzklasse: E
Energiekennwert: 154,97 kWh/(m²*a)
Heizungsart: Zentralheizung
Befeuerung/Energieträger: Öl
Energieausweistyp: Bedarfsausweis
Kostenlose Online-Bewertung - https://aigner-immobilien.de/wertermittlung-online-muenchen/
Zu unseren Marktberichten -...
Anbieter der Immobilie
Aigner Immobilien GmbH
Ruffinistraße 26, 80637 München
Online-ID: 2mkcu5j
Referenznummer: 42590
Finde Angebote wie dieses
Hier geht es zu unserem Impressum, den Allgemeinen Geschäftsbedingungen, den Hinweisen zum Datenschutz und nutzungsbasierter Online-Werbung.