Büro zur Miete - Erstbezug14 €/m²4 Zimmer
14 €
/m²
4 Zimmer
Kurzgasse - repräsentatives Altbaubüro Nähe U3/U6 Westbahnhof
Merkmale
- Bezug: nach Mietvertrag
- 1. Geschoss
- Teeküche
- Personenaufzug
- Badezimmer: Badewanne, Bad mit Fenster
- Bodenbelag: Fliesen, Parkett
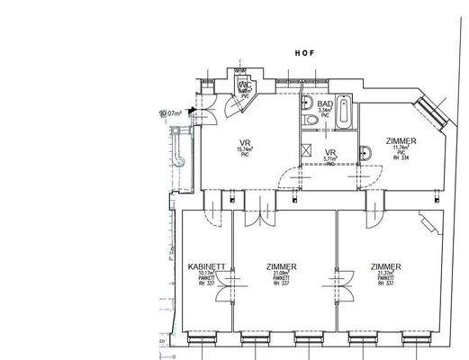
Grundrisse
Grundrisse
1 / 1
Bausubstanz und Energie
Heizwärmebedarf (HWB)
E
Gesamtenergieeffizienz (fGEE)
E
- Zustand der ImmobilieAltbau (bis 1945), Erstbezug
- HeizungsartEtagenheizung
- EnergieträgerGas
Mietkosten
Nettokaltmiete
14 €/m²
1.260,98 €
Betriebskosten
182,80 €
Provision für Mieter
3 Bruttomonatsmieten zzgl. 20% USt.
Kaution
3 Bruttomonatsmieten
Weitere Preisinformationen
Nettokaltmiete: 1.260,98 EUR
Lage

Wien (1060)
Weitere Informationen
Weitere Services
Lust auf eine Besichtigung?
Eine Frage zur Immobilie?
Über den Anbieter
Peter-Jordan-Str. 8, 1190 WIEN
Partnerschaft
Frau Michelle GnadenbergerDein Kontakt
Online-ID: 26MPS3SC1DRY
Referenznummer: OBGC20251218112343444bf54fa193e
Wie zufrieden bist du mit dieser Seite (nicht mit der Immobilie selbst)?
