
Apenburg Immobilien
Frau Andrea Remuß
040 ···
Nr. anzeigenPreise & Kosten
in Warmmiete enthalten
Kaution
4.350,00
Warum sehe ich diese Anzeige? – Du siehst diese Anzeige basierend auf Ihrer Navigation auf unserer Website und den Suchkriterien, die du verwendet hast.
Lage
Das Haus befindet sich in einer ruhigen und idyllischen Lage, nicht weit vom Sachsenwald entfernt, zwischen Wentorf und Reinbek. Die Gärtnerstraße zählt zur ursprünglichen Entstehung des Villenviertels und zeichnet sich durch die schöne Architektur der Häuser aus. Die Geschäfte des täglichen Bedarfs sind in Wentorf und auch...
Die Wohnung
Wohnungslage
1. Geschoss
Bezug
01.02.2026
Wohnanlage
Energie & Heizung
Warum sehe ich diese Anzeige? – Du siehst diese Anzeige basierend auf Ihrer Navigation auf unserer Website und den Suchkriterien, die du verwendet hast.
Energieausweistyp
Bedarfsausweis
Gebäudetyp
Wohngebäude
Baujahr laut Energieausweis
1912
Wesentliche Energieträger
Öl
Gültigkeit
07.06.2023 bis 06.06.2033
Effizienzklasse
G
Endenergiebedarf
239,40 kWh/(m²·a)
Weitere Energiedaten
Energieträger
Öl
Heizungsart
Zentralheizung
Details
Objektbeschreibung
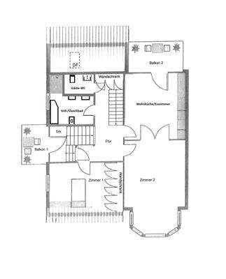
Die klassische Rotklinkervilla mit weißen Fensterrahmen und Dachziegeln in anthrazit wurde um 1912 errichtet. Sie präsentiert sich mit einem hellen Eingangs- und großzügigem Treppenhausbereich und ist voll unterkellert. Im Objekt befinden sich 2 Wohneinheiten.
Die hier angebotene Wohnung liegt im Ober-/Dachgeschoss...
Ausstattung
Pitchpine Holzdielen im 1. Obergeschoss, Vinylboden im Dachgeschoss; Voll-/ Duschbad/WC mit anthrazitfarbenen Bodenfliesen und weißen Wandfliesen, Handtuchheizkörper; helle Einbauküche mit Platz für eigene Geräte, die Beheizung und Warmwasserversorgung erfolgen über eine Ölzentralheizung.
Weitere Informationen
Sonstiges
Die Gesamtkosten verstehen sich zzgl. der Kosten für Strom und Wasser, die direkt an die zuständigen Versorgungsunternehmen zu zahlen sind.
Die Kosten für die Garage und den Stellplatz belaufen sich auf 100,00 € monatlich, sodass insgesamt eine Miete von 1.850,00 € zu zahlen ist.
Mietbeginn per...
Anbieter der Immobilie
Apenburg Immobilien
Hermannstraße 40, 20095 Hamburg
Online-ID: 2mkdf5n
Referenznummer: 702225
Finde Angebote wie dieses
Hier geht es zu unserem Impressum, den Allgemeinen Geschäftsbedingungen, den Hinweisen zum Datenschutz und nutzungsbasierter Online-Werbung.