

KLAUS Wohnbau GmbH
Herr Christian Hübel
+49 ···
Nr. anzeigenDieses Angebot ist Teil des Neubauprojekts
ZUG5PITZ
Preise & Kosten
Provision für Käufer
provisionsfrei
Lage
HARMONISCH ZWISCHEN ZWEI WELTEN GELEGEN
Nachhaltig, grün und dennoch urban: Die Lage im Augsburger Stadtteil Hochzoll vereint städtische Infrastruktur mit naturnaher Umgebung und hohem Freizeitwert.
Das Wohnprojekt ZUG5PITZ von KLAUS Wohnbau bietet eine attraktive Wohnlage, in der Sie von den kulturellen Angeboten der...
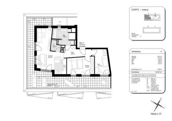
Die Wohnung
Bezug
kurzfristig möglich
Wohnanlage
Das Neubauprojekt
Energie & Heizung
Warum sehe ich diese Anzeige? – Du siehst diese Anzeige basierend auf Ihrer Navigation auf unserer Website und den Suchkriterien, die du verwendet hast.
Energieausweistyp
Bedarfsausweis
Gebäudetyp
Wohngebäude
Baujahr laut Energieausweis
2022
Wesentliche Energieträger
Holzpellets
Gültigkeit
23.09.2024 bis 23.09.2034
Effizienzklasse
B
Endenergiebedarf
54,40 kWh/(m²·a)
Weitere Energiedaten
Energieträger
Pellets
Haustyp
KfW 55
Heizungsart
Fußbodenheizung
Details
Objektbeschreibung
Kurzbeschreibung
3-Zimmer-Wohnung mit ca. 101,67?m² im DG. Umlaufende Dachterrasse, Tageslichtbad, Gäste-WC. Hochwertige Ausstattung. Besichtigung jederzeit möglich - auch an Sonn- und Feiertagen!
Objektbeschreibung
ZUG5PITZ - natürlich individuell - kurzfristig bezugsfertig!
Im fertiggestellten...
Ausstattung
ANSPRUCHSVOLL UND ZUKUNFTSWEISEND
Alle Wohnungen im ZUG5PITZ bieten eine hochwertige Ausstattung mit modernen Designelementen.
Natürliche Materialien, effiziente Isolierung und nachhaltige Technik sorgen für Komfort und Energieeinsparung.
Highlights im Überblick:
Wohnungseingangstüren mit...
Weitere Informationen
Angaben zum Energieausweis:
Bedarfsausweis | Bj:2022 | Kennwert Haus A+B: 54,4 kWh / m²a, Haus C+D 67,6 kWh/m2a | EEK: B | Energieträger: Pelletheizung mit Solarthermie
Dokumente
Anbieter der Immobilie
KLAUS Wohnbau GmbH
Schwangaustraße 29, 86163 Augsburg

Online-ID: 2mkel5h
Referenznummer: Wohnung Nr. 11
Finde Angebote wie dieses
Hier geht es zu unserem Impressum, den Allgemeinen Geschäftsbedingungen, den Hinweisen zum Datenschutz und nutzungsbasierter Online-Werbung.