
VON POLL IMMOBILIEN Gütersloh - Schremmer Immobilien GmbH & Co. KG
Herr Luca Böckstiegel
004 ···
Nr. anzeigenPreise & Kosten
Kaution
2.400,00
Warum sehe ich diese Anzeige? – Du siehst diese Anzeige basierend auf Ihrer Navigation auf unserer Website und den Suchkriterien, die du verwendet hast.
Lage
Die Stadt Halle (Westf.) hat rund 21.000 Einwohner und liegt im Kreis Gütersloh am Südhang des Teutoburger Waldes.
Sie verfügt neben diversen Einkaufsmöglichkeiten, Ärzten und einem Krankenhaus, auch über ein umfangreiches Sportangebot (Familien- und Freizeitbad, Fitness- und Rehasport, Golfplatz). Kindergärten...
Die Wohnung
Wohnungslage
Erdgeschoss
Wohnanlage
Energie & Heizung
Warum sehe ich diese Anzeige? – Du siehst diese Anzeige basierend auf Ihrer Navigation auf unserer Website und den Suchkriterien, die du verwendet hast.
Energieausweistyp
Bedarfsausweis
Gebäudetyp
Wohngebäude
Baujahr laut Energieausweis
2015
Wesentliche Energieträger
GAS
Gültigkeit
bis 04.02.2026
Effizienzklasse
A
Endenergiebedarf
58,47 kWh/(m²·a)
Weitere Energiedaten
Energieträger
Gas
Haustyp
Holzhaus
Heizungsart
Zentralheizung
Details
Objektbeschreibung
Diese Immobilie wird Ihnen präsentiert von:
Jan-Phillip Adam & Luca Böckstiegel
Büro: 05201 - 15 88 02 1
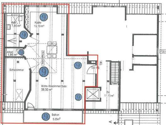
Zentrale und schicke Altbauwohnung | ca. 95 m² | 2 ZKB | Halle (Westf.)
Diese charmante und zentral in Halle gelegene Wohnung befindet sich im DG eines 8-Parteienhauses, das im Jahr 2015...
Ausstattung
AUF EINEN BLICK
Fahrstuhl
Diele
offener Küchenbereich
helles Wohn-Esszimmer
Schlafzimmer
2 Abstellräume
modern saniertes Bad mit ebenerdiger Dusche
Fahrradhäuschen neben der Immobile
zugehöriger Parkplatz zur Wohnung hinter dem Haus (zzgl. 30€ monatlich)
Die Wohnflächenangabe bezieht...
Preisinformation
1 Stellplatz, Miete: 30,00 EUR
Weitere Informationen
Sonstiges
Es liegt ein Energiebedarfsausweis vor.
Dieser ist gültig bis 4.2.2026.
Endenergiebedarf beträgt 58.47 kwh/(m²*a).
Wesentlicher Energieträger der Heizung ist Gas.
Das Baujahr des Objekts lt. Energieausweis ist 2015.
Die Energieeffizienzklasse ist A.
GELDWÄSCHE
Als...
Anbieter der Immobilie
VON POLL IMMOBILIEN Gütersloh - Schremmer Immobilien GmbH & Co. KG
Berliner Straße 3, 33330 Gütersloh
Online-ID: 2mkfg5e
Referenznummer: 25 220 070
Finde Angebote wie dieses
Hier geht es zu unserem Impressum, den Allgemeinen Geschäftsbedingungen, den Hinweisen zum Datenschutz und nutzungsbasierter Online-Werbung.