
IMMOPROFIS365 GmbH
Herr Oliver Beckmann
004 ···
Nr. anzeigenPreise & Kosten
Provision für Käufer
Provisionsfrei für Käufer
Lage
Top-Lage in Erwitte - zentral, ruhig und begehrt
Die Wohnung befindet sich in der Bergerstraße 10, einer bevorzugten Wohnlage in Erwitte. Einkaufsmöglichkeiten, Ärzte, Apotheken, Restaurants sowie Schulen und Kindergärten sind bequem fußläufig erreichbar. Die charmante Innenstadt und der Kurort Bad Westernkotten mit...
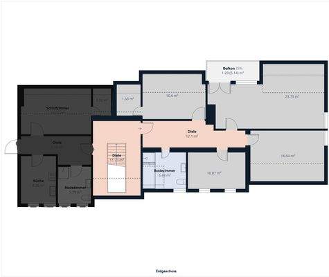
Die Wohnung
Wohnanlage
Energie & Heizung
Warum sehe ich diese Anzeige? – Du siehst diese Anzeige basierend auf Ihrer Navigation auf unserer Website und den Suchkriterien, die du verwendet hast.
Energieausweistyp
Bedarfsausweis
Gebäudetyp
Wohngebäude
Baujahr laut Energieausweis
1990
Wesentliche Energieträger
ELEKTRO
Gültigkeit
bis 12.09.2035
Effizienzklasse
G
Endenergiebedarf
225,89 kWh/(m²·a)
Weitere Energiedaten
Energieträger
Elektro
Details
Objektbeschreibung
Großzügige 3-Zimmer-Dachgeschosswohnung mit Balkon - zentral in Erwitte
Diese gepflegte Eigentumswohnung im DG eines ruhigen 8-Parteien-Hauses bietet ca. 86?m² Wohnfläche und überzeugt mit durchdachtem Grundriss und zentraler Lage.
Highlights:
Großes Wohnzimmer mit Zugang zum Balkon
Separate Küche mit Platz...
Ausstattung
Ausstattung der Eigentumswohnung in Erwitte
Wohnfläche: ca. 86?m²
Lage: Dachgeschoss in einem 8-Parteien-Haus
Allgemein:
Helle Räume mit teils schrägen Decken & Dachflächenfenstern
Funktionale Raumaufteilung: Diele mit Zugang zu allen Räumen
Solide Innenausstattung mit Fliesen- und...
Preisinformation
1 Stellplatz
Weitere Informationen
Sonstiges
Provisionsfrei für Käufer bedeutet:
Es wird weder ein Maklervertrag noch eine Vergütungsvereinbarung getroffen!
Diese Immobilie wird so angeboten, dass kein Maklervertrag mit dem Kaufinteressenten abgeschlossen wird. Die Vergütung bei der Vermittlung dieser Immobilie trägt ausschließlich der Verkäufer...
Anbieter der Immobilie
IMMOPROFIS365 GmbH
Rofuhr 33, 59581 Warstein
Online-ID: 2mkfm5v
Referenznummer: 388
Finde Angebote wie dieses
Hier geht es zu unserem Impressum, den Allgemeinen Geschäftsbedingungen, den Hinweisen zum Datenschutz und nutzungsbasierter Online-Werbung.