

Welsch & Partner Immobilien GbR
Herr Mathias Welsch
+49 ···
Nr. anzeigenPreise & Kosten
Provision für Käufer
Die Käufer-Maklerprovision beträgt 2.142€ inkl. MwSt. vom notariellen Kaufpreis.
Lage
Die hier angebotene 3-Zimmer Wohnung befindet sich in unmittelbarer Nähe der Georg-August-Universität Göttingen und am Rand der Innenstadt von Göttingen.
Ca. 20% der Bevölkerung sind Studenten, somit ist Nachfrage an Wohnungen dieser Art stetig vorhanden.
Die schnelle Erreichbarkeit der City wird mit den öffentlichen...
Die Wohnung
Wohnungslage
9. Geschoss
Bezug
sofort
Derzeitige Nutzung
vermietet
Wohnanlage
Energie & Heizung
Warum sehe ich diese Anzeige? – Du siehst diese Anzeige basierend auf Ihrer Navigation auf unserer Website und den Suchkriterien, die du verwendet hast.
Energieausweistyp
Verbrauchsausweis
Gebäudetyp
Wohngebäude
Baujahr laut Energieausweis
1974
Wesentliche Energieträger
Fernwärme
Gültigkeit
12.09.2018 bis 11.09.2028
Effizienzklasse
F
Endenergieverbrauch
173,00 kWh/(m²·a)
Weitere Energiedaten
Energieträger
Fernwärme
Details
Objektbeschreibung
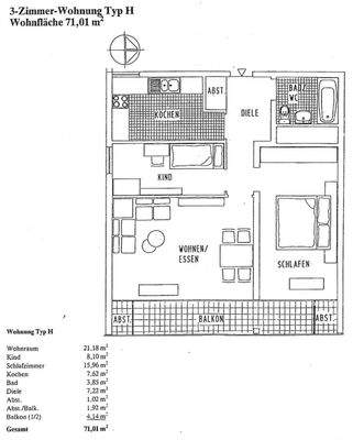
Die hier angebotene 3-Zimmer-Wohnung (Typ H 145) befindet sich in der 9. Etage des Iduna Zentrums im Maschmühlenweg 4 in Göttingen. Der Gebäudekomplex umfasst ca. 407 Wohneinheiten und wurde im Jahr 1974 erbaut.
Durch die in unmittelbarer Nähe zur Georg-August-Universität Göttingen ist die Wohnung zuletzt als Studenten-WG...
Weitere Informationen
Sonstiges
Weitere Informationen zum Angebot erhalten Sie bei Welsch & Partner Immobilien durch Herrn Welsch unter 0561 - 97 90 73 95 oder mobil 0173 - 81 89 378.
Laut der EU-Verbraucherrechte-Richtlinie (Fernabsatzrecht) sind wir verpflichtet, von allen Interessenten bei einer Anfrage - also z.B. per Internet...
Anbieter der Immobilie
Welsch & Partner Immobilien GbR
Lange-Geismar-Str. 68, 37073 Göttingen

Online-ID: 2mkg359
Referenznummer: 1455 (1/1455)
Finde Angebote wie dieses
Hier geht es zu unserem Impressum, den Allgemeinen Geschäftsbedingungen, den Hinweisen zum Datenschutz und nutzungsbasierter Online-Werbung.