
Feinwerk Immobilien GmbH & Co. KG
Herr Stephan Kunz
004 ···
Nr. anzeigenPreise & Kosten
Provision für Käufer
2,38% inkl. 19% MwSt. vom notariell beurkundeten Kaufpreis inkl. MwSt.
Die Käuferprovision beträgt 2,38% inkl. 19% MwSt. vom notariell beurkundeten Kaufpreis. Weitere Informationen siehe Provisionshinweis.
Lage
Die Wohnung liegt ruhig nahe der U-Bahn-Station Klinikum Großhadern der Linie U6, einer der begehrtesten Wohnlagen im Münchner Südwesten. Besonders attraktiv ist die unmittelbare Nähe zu weitläufigen Wald- und Grünflächen sowie zum Forstenrieder Park, die ideal für Spaziergänge, Jogging oder eine Auszeit vom städtischen...
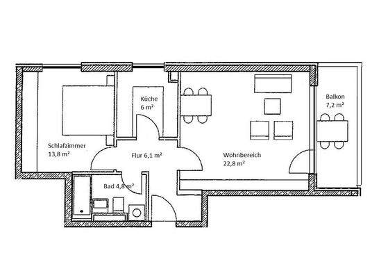
Die Wohnung
Wohnungslage
2. Geschoss
Bezug
ab sofort
Wohnanlage
Energie & Heizung
Warum sehe ich diese Anzeige? – Du siehst diese Anzeige basierend auf Ihrer Navigation auf unserer Website und den Suchkriterien, die du verwendet hast.
Energieausweistyp
Verbrauchsausweis
Gebäudetyp
Wohngebäude
Baujahr laut Energieausweis
2005
Wesentliche Energieträger
FERN
Gültigkeit
06.07.2018 bis 05.07.2028
Effizienzklasse
B
Endenergieverbrauch
57,00 kWh/(m²·a)
Weitere Energiedaten
Energieträger
Fernwärme
Details
Objektbeschreibung
Die moderne und helle 2-Zimmer-Wohnung bietet ca. 57?m² Wohnfläche und überzeugt mit einem durchdachten Grundriss. Große Fenster lassen viel Tageslicht in die Räume und schaffen eine offene, freundliche Atmosphäre. Vom großzügigen Balkon genießen Sie einen schönen Blick in die gepflegte Nachbarschaft. Die Wohnung ist mit...
Ausstattung
Die Wohnung überzeugt durch hochwertige, zeitlos gewählte Materialien. Der Parkettboden in Wohn- und Schlafräumen harmoniert elegant mit den geschmackvoll verlegten Fliesen in Küche und Badezimmer.
Die Küche ist funktional ausgestattet und verfügt über eine Vielzahl von Schränken, einen Kühlschrank mit Gefrierfach, Herd...
Preisinformation
1 Tiefgaragenstellplatz, Kaufpreis: 30.000,00 EUR
Weitere Informationen
Provisionshinweis
2,38% inkl. 19% MwSt. vom notariell beurkundeten Kaufpreis inkl. MwSt.
Die Käuferprovision beträgt 2,38% inkl. 19% MwSt. vom notariell beurkundeten Kaufpreis. Sie ist verdient und fällig mit Beurkundung des notariellen Kaufvertrages. Der Immobilienmakler hat einen provisionspflichtigen Maklervertrag...
Anbieter der Immobilie
Feinwerk Immobilien GmbH & Co. KG
Residenzstr. 18, 80333 München
Online-ID: 2mkg95v
Referenznummer: 340
Finde Angebote wie dieses
Hier geht es zu unserem Impressum, den Allgemeinen Geschäftsbedingungen, den Hinweisen zum Datenschutz und nutzungsbasierter Online-Werbung.