

Dressel Immobilien GmbH
Herr Marvin Dressel
092 ···
Nr. anzeigenPreise & Kosten
Provision für Käufer
3,57% (inkl. MwSt)
Abschreibung/Anlage
Denkmalschutz-Afa
Lage
Im Herzen der Bayreuther Innenstadt liegt dieses Haus in der besten Lagen der Maximilianstraße direkt gegenüber vom Ehrenhof. Direkt in der Fußgängerzone platziert, profitiert das Objekt von einer erstklassigen Nachbarschaft, die sowohl den Anforderungen von Gewerbetreibenden als auch von Mietern gerecht wird. Die...
Das Haus
Kategorie
Mehrfamilienhaus
Baujahr
1716
Bezug
sofort
Energie & Heizung
Warum sehe ich diese Anzeige? – Du siehst diese Anzeige basierend auf Ihrer Navigation auf unserer Website und den Suchkriterien, die du verwendet hast.
Energieausweis: für diesen Gebäudetyp nicht notwendig
Weitere Energiedaten
Energieträger
Gas
Heizungsart
Etagenheizung
Details
Objektbeschreibung
Dieses beeindruckende Mehrfamilienhaus mit Gewerbefläche direkt in der hoch frequentierten Fußgängerzone der Universitätsstadt Bayreuth bietet eine einmalige Gelegenheit für Investoren und Kapitalanleger. Die Immobilie besticht durch ihre privilegierte Lage direkt in der Maximilianstraße, die eine hohe Kundenfrequenz und...
Ausstattung
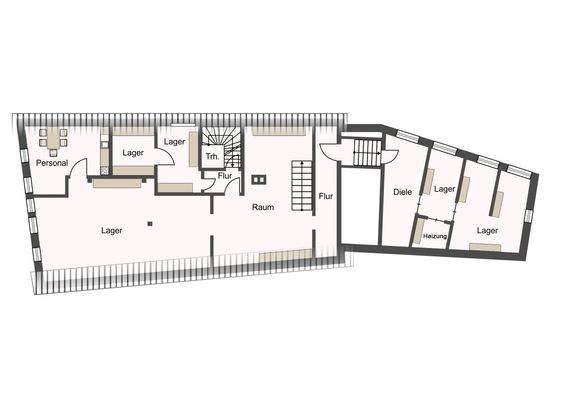
- Grundfläche von 732m² mit großem Ausbaupotential
- Erdgeschosseinheit an solventen Mieter vermietet
- drei Etagen mit Umbaupotenzial
- Ziegelmauerwerk und solide Gebäudesubstanz
- Dach geprüft, sehr guter Zustand, gedämmt
- 2021 Kernsanierung Erdgeschoss, hochwertig modernisiert
- Elektrik und...
Weitere Informationen
Sonstiges
Der Käufer zahlt im Erfolgsfall an die Firma Dressel Immobilien GmbH eine Käufer- Maklerprovision in Höhe von 3,57% inkl. 19% MwSt. Die Provision errechnet sich aus dem beurkundeten Kaufpreis.
Dieses Exposé ist eine Vorabinformation, als Rechtsgrundlage gilt allein der notariell abgeschlossene Kaufvertrag...
Anbieter der Immobilie
Dressel Immobilien GmbH
Kemnather Straße 27, 95448 Bayreuth

Online-ID: 2mkjp5r
Referenznummer: 24721
Finde Angebote wie dieses
Hier geht es zu unserem Impressum, den Allgemeinen Geschäftsbedingungen, den Hinweisen zum Datenschutz und nutzungsbasierter Online-Werbung.