
Wohnungsgenossenschaft UNITAS eG
Herr Jan Möbius
(03 ···
Nr. anzeigenPreise & Kosten
Warum sehe ich diese Anzeige? – Du siehst diese Anzeige basierend auf Ihrer Navigation auf unserer Website und den Suchkriterien, die du verwendet hast.
Lage
Die Wohnung liegt in einer normalen Wohnlage an einer Hauptstraße. In unmittelbarer Nähe befinden sich: Einzelhandelseinrichtungen, Dienstleister, Ärzte, Schulen, Gastronomie, Haltestellen der Straßenbahnlinien: 15, Haltestellen der Buslinien: 62, des ÖPNV.
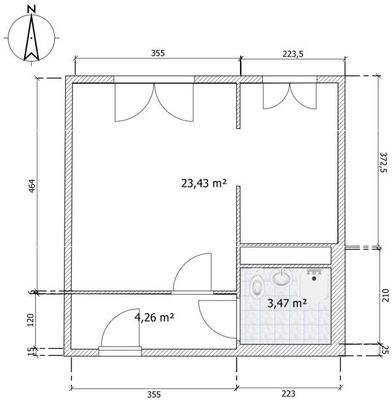
Die Wohnung
Wohnungslage
6. Geschoss
Bezug
sofort
Wohnanlage
Energie & Heizung
Warum sehe ich diese Anzeige? – Du siehst diese Anzeige basierend auf Ihrer Navigation auf unserer Website und den Suchkriterien, die du verwendet hast.
Energieausweistyp
Verbrauchsausweis
Gebäudetyp
Wohngebäude
Wesentliche Energieträger
FERN
Gültigkeit
seit 13.12.2024
Effizienzklasse
C
Endenergieverbrauch
78,70 kWh/(m²·a) - Warmwasser enthalten
Weitere Energiedaten
Energieträger
Fernwärme
Details
Objektbeschreibung
Wohnung liegt am Rande Grünaus mit Blick auf Miltitz in der Nähe der Endstelle der Straßenbahnlinie 15. Ein Erholungsgebiet mit Sport- und Freizeitmöglichkeiten befindet sich in unmittelbarer Nähe am Kulkwitzer See.
Ausstattung
Der Fußboden ist mit PVC oder Linoleum, Fliesen belegt. Das Bad ist mit einer Badewanne ausgestattet. Medial kann Digital TV, Internet, Telefonie über TV-Kabel von PYUR angeboten werden.
Weitere Informationen
Sonstiges
Es sind Genossenschaftsanteile gemäß Satzung zu zeichnen. Der angegebene Mietpreis kann auf Grund individueller Ausstattungswünsche variieren. Maßangaben in Grundrissen sind Richtmaße und in der Örtlichkeit zu prüfen!
Stichworte
6 Etagen, Wohnungsnr.: 1/828/2/16, Zustand nach Vereinbarung
Dokumente
Anbieter der Immobilie
Online-ID: 2mkjy5n
Referenznummer: 1/828/2/16
Finde Angebote wie dieses
Hier geht es zu unserem Impressum, den Allgemeinen Geschäftsbedingungen, den Hinweisen zum Datenschutz und nutzungsbasierter Online-Werbung.