
RUHR REAL GmbH
Herr Felix Ludwig
+49 ···
Nr. anzeigenPreise & Kosten
Provision für Mieter
provisionsfrei
Warum sehe ich diese Anzeige? – Du siehst diese Anzeige basierend auf Ihrer Navigation auf unserer Website und den Suchkriterien, die du verwendet hast.
Lage
Die Liegenschaft liegt im lebendigen Kölner Stadtteil Mülheim. In wenigen Gehminuten sind mehrere Bahnstationen erreichbar, die eine ideale Anbindung an den öffentlichen Nahverkehr bieten. Auch die Kölner Innenstadt sowie die umliegenden Autobahnen sind schnell erreichbar.
Das nahegelegene Mülheimer Zentrum überzeugt...
Die Industriefläche
Kategorie
Lagerhalle
Bezug
ab sofort
Details
Objektbeschreibung
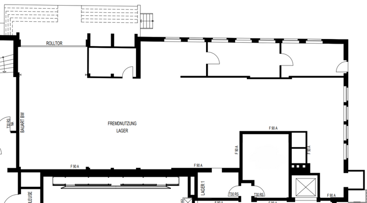
Die angebotene Fläche erstreckt sich über 309 m² bei einer Deckenhöhe von 3 m und bietet eine optimale Nutzungsmöglichkeit für verschiedenste Gewerbezwecke. Die ebenerdige Andienung ermöglicht eine unkomplizierte Anlieferung und den reibungslosen Transport von Waren. In der Fläche sind Sanitäreinrichtungen vorhanden, die den...
Ausstattung
. ebenerdige Andienung
. Sanitäreinrichtungen
. integrierte Büroflächen
. LED-Beleuchtung
. Oberlichter
. Gasheizung
Preisinformation
Nettokaltmiete: 10,00 EUR
Weitere Informationen
Sonstiges
Es gelten ausschließlich unsere AGB (www.ruhr-real.de/agb). Die Halle ist nicht für Veranstaltungsräume geeignet. Wir möchten Sie darauf hinweisen, dass die Angaben ausschließlich auf den uns vom Eigentümer übermittelten Unterlagen und Informationen basieren. Für Richtigkeit und Vollständigkeit übernehmen wir...
Anbieter der Immobilie

RUHR REAL GmbH
Holsterhauser Platz 2, 45147 Essen
Online-ID: 2mkkh53
Referenznummer: 4237/G1/E1
Finde Angebote wie dieses
Hier geht es zu unserem Impressum, den Allgemeinen Geschäftsbedingungen, den Hinweisen zum Datenschutz und nutzungsbasierter Online-Werbung.