
Bricks & Mortar Immobilien National GmbH
Herr Matthias Eidner
004 ···
Nr. anzeigenPreise & Kosten
Provision für Käufer
3,57% Käuferprovision inkl. gesetzl. MwSt. inkl. MwSt.
Lage
Die Gemeinde liegt im Süden des Landkreises Dillingen an der Donau und grenzt dort an den Landkreis Augsburg.
Verkehrstechnisch ist Holzheim über die 16 Km entfernte BAB 8 in alle Richtungen München oder Ulm erreichbar.
Das Haus
Kategorie
Doppelhaushälfte
Baujahr
2014
Bezug
sofort
Energie & Heizung
Warum sehe ich diese Anzeige? – Du siehst diese Anzeige basierend auf Ihrer Navigation auf unserer Website und den Suchkriterien, die du verwendet hast.
Energieausweistyp
Bedarfsausweis
Gebäudetyp
Wohngebäude
Baujahr laut Energieausweis
2014
Wesentliche Energieträger
FLUESSIGGAS
Effizienzklasse
A
Endenergiebedarf
43,10 kWh/(m²·a)
Weitere Energiedaten
Energieträger
Flüssiggas
Heizungsart
Fußbodenheizung
Details
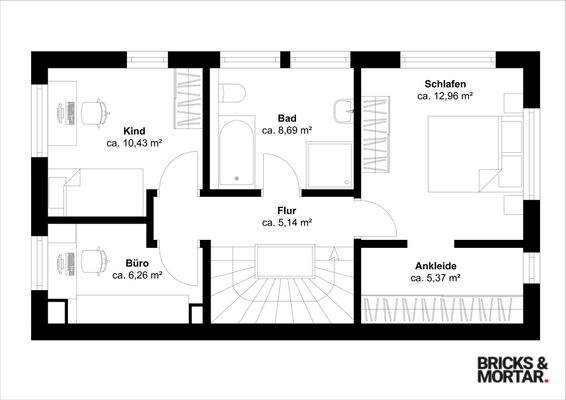
Objektbeschreibung
Nach Hause kommen - Geborgenheit und eine entspannte Atmosphäre bei warmen Licht, dieses Gefühl von Ruhe und Entspannung ist Ihr neues Zuhause.
Diese moderne Doppelhaushälfte, liegt in mitten einer sehr ruhigen und
exklusiven Wohngegend.
Eine kleine, feine Oase vor dem Haus. Die Kombination aus Pflanzen und...
Ausstattung
FAKTEN UND VORTEILE
+ Lüftungsanlage mit Fußbodenheizung
+ Effiziente Dämmstoffe
+ Einbauküche
+ Umweltfreundliche und nachhaltige Technik
+ Geringere Betriebskosten
+ 3 Außenstellplätze verfügbar
+ Platz für Waschmaschine, Wäschetrockner
+ Moderne Architektur
+ Hochwertige Materialien
Preisinformation
3 Stellplätze
Weitere Informationen
Sonstiges
Anfragen über die Immobilienportale werden nur mit vollständiger Adresse und
Telefonnummer bearbeitet.
Gerne sind wir für weitere Fragen und Informationen unter
Tel.: +49 1520 344 1375 erreichbar.
Alle Angaben stammen vom Eigentümer, der Makler übernimmt hierfür keine Haftung.
Bei...
Anbieter der Immobilie
Bricks & Mortar Immobilien National GmbH
Dieselstraße 41, 86368 Gersthofen
Online-ID: 2mkl85p
Referenznummer: MEi-064-KH
Finde Angebote wie dieses
Hier geht es zu unserem Impressum, den Allgemeinen Geschäftsbedingungen, den Hinweisen zum Datenschutz und nutzungsbasierter Online-Werbung.