
Königskinder Immobilien GmbH
Herr Bernd Spachmann
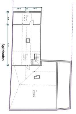
004 ···
Nr. anzeigenPreise & Kosten
Provision für Käufer
5,95 % inkl. MwSt. auf den beurkundeten Kaufpreis
Lage
Unweit vom Marktplatz in Großostheim befindet sich dieses Anwesen.
Großostheim liegt der Region Bayerischer Untermain, nur Rund 12 km von Aschaffenburg entfernt. Großostheim besteht aus vier Gemeindeteilen: Während Ringheim schon immer ein Gemeindeteil und zur Gemarkung von Großostheim zugehörig war, sind Pflaumheim...
Das Haus
Baujahr
1885
Bezug
Sofort
Derzeitige Nutzung
vermietet
Energie & Heizung
Warum sehe ich diese Anzeige? – Du siehst diese Anzeige basierend auf Ihrer Navigation auf unserer Website und den Suchkriterien, die du verwendet hast.
Energieausweistyp
Bedarfsausweis
Gebäudetyp
Wohngebäude
Baujahr laut Energieausweis
2021
Wesentliche Energieträger
GAS
Gültigkeit
bis 05.05.2034
Effizienzklasse
F
Endenergiebedarf
199,90 kWh/(m²·a)
Weitere Energiedaten
Haustyp
Massivhaus
Energieträger
Gas
Details
Objektbeschreibung
Königskinder Immobilien Aschaffenburg kauft oder vermittelt auch Ihre Immobilie - mit kostenloser und unverbindlicher Marktwertermittlung! Rufen Sie uns gern direkt unter 0172 8260229 an.
WICHTIGER HINWEIS - BITTE BEACHTEN
Ihnen gefällt dieses Angebot? Dann freuen wir uns auf Ihre schriftliche Anfrage über das...
Ausstattung
Seit rund 20 Jahren sind die Eigentümer dabei, das Anwesen zu modernisieren. Die Wohnungen und Gewerbeflächen wurden bei einem Mieterwechsel renoviert, es wurden die Bäder, Fenster, Bodenbeläge und alle Leitungen (Elektrik, Wasser, Abwasser) erneuert und zuletzt 10.2021 eine neue Gas-Brennwerttherme eingebaut und der Kamin...
Preisinformation
7 Stellplätze
7 Garagenstellplätze
Weitere Informationen
Sonstiges
Potenziellen Käufern sind wir auch bei der Finanzierung behilflich und stellen alle zum Kauf relevanten Unterlagen (soweit vorliegend) zur Verfügung und können Ihnen auch einen Profi für Ihre Finanzierung empfehlen.
Da wir uns bei allen Angaben auf die Informationen Dritter stützen müssen, können wir keine...
Anbieter der Immobilie
Online-ID: 2mklq5a
Referenznummer: LDW1.BS.8925
Finde Angebote wie dieses
Hier geht es zu unserem Impressum, den Allgemeinen Geschäftsbedingungen, den Hinweisen zum Datenschutz und nutzungsbasierter Online-Werbung.