
Wohnungsgenossenschaft UNITAS eG
Herr Jan Möbius
(03 ···
Nr. anzeigenPreise & Kosten
Warum sehe ich diese Anzeige? – Du siehst diese Anzeige basierend auf Ihrer Navigation auf unserer Website und den Suchkriterien, die du verwendet hast.
Lage
Die Wohnung liegt in einer sehr guten Wohnlage an einer Nebenstraße. In unmittelbarer Nähe befinden sich: Einzelhandelseinrichtungen, Dienstleister, Ärzte, Erhohlungs- und Freizeiteinrichtungen, öffentliche Grünanlagen oder Parkflächen, Haltestellen der Straßenbahnlinien: 1, 2, Haltestellen der Buslinien: 60, des ÖPNV.
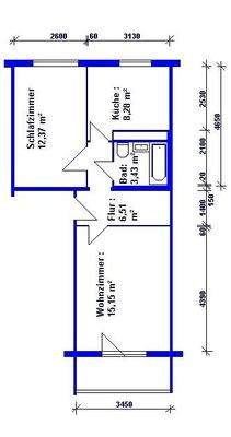
Die Wohnung
Wohnungslage
5. Geschoss
Bezug
16.01.2026
Wohnanlage
Energie & Heizung
Warum sehe ich diese Anzeige? – Du siehst diese Anzeige basierend auf Ihrer Navigation auf unserer Website und den Suchkriterien, die du verwendet hast.
Energieausweistyp
Verbrauchsausweis
Gebäudetyp
Wohngebäude
Wesentliche Energieträger
FERN
Gültigkeit
seit 29.11.2024
Effizienzklasse
C
Endenergieverbrauch
77,20 kWh/(m²·a) - Warmwasser enthalten
Weitere Energiedaten
Energieträger
Fernwärme
Details
Objektbeschreibung
Ein ruhiges Wohngebiet am Rande Grünaus. Die Straßenbahnlinien 1 und 2 stellen eine optimale Verbindung in die Leipziger City dar. Die Buslinien 61 und 65 sowie der Quartiersbus "Grünolino" runden das Angebot des öffentlichen Nahverkehrs ab. In unmittelbarer Nähe befinden sich verschiedene Einkaufsmöglichkeiten wie z.B. das...
Ausstattung
Die Wohnung hat einen Balkon, der Fußboden ist mit PVC oder Linoleum, Fliesen belegt. Das Bad ist mit einer Dusche ausgestattet. Medial kann Digital TV, Internet, Telefonie über TV-Kabel von PYUR angeboten werden.
Weitere Informationen
Sonstiges
Es sind Genossenschaftsanteile gemäß Satzung zu zeichnen. Der angegebene Mietpreis kann auf Grund individueller Ausstattungswünsche variieren. Maßangaben in Grundrissen sind Richtmaße und in der Örtlichkeit zu prüfen!
Stichworte
Anzahl Balkone: 1, 5 Etagen, Wohnungsnr.: 1/814/2/10, Zustand nach...
Dokumente
Anbieter der Immobilie
Online-ID: 2mkm95p
Referenznummer: 1/814/2/10
Finde Angebote wie dieses
Hier geht es zu unserem Impressum, den Allgemeinen Geschäftsbedingungen, den Hinweisen zum Datenschutz und nutzungsbasierter Online-Werbung.