
TnT-Real Estate GmbH
Frau Doreen Fröhlich
017 ···
Nr. anzeigenPreise & Kosten
Kaution
3-fache Monatsmiete
Provision für Mieter
provisionsfrei
Warum sehe ich diese Anzeige? – Du siehst diese Anzeige basierend auf Ihrer Navigation auf unserer Website und den Suchkriterien, die du verwendet hast.
Lage
Der Büro- und Werkstatt-/Atelierkomplex befindet sich inmitten der beliebten Dresdner Neustadt, einem weit über die Landesgrenzen hinaus bekannten Szeneviertels. Das gewachsene Gründerzeitviertel zeichnet sich durch Lebendigkeit und Internationalität aus. Das Objekt liegt am Bahndamm nahe der Königsbrücker Straße und nicht...
Büro-/Praxisfläche
Kategorie
Bürofläche
Bezug
sofort möglich
Derzeitige Nutzung
frei
Geschoss
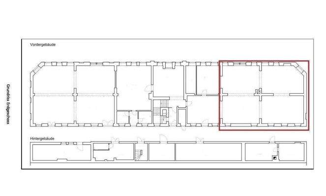
Erdgeschoss
Energie & Heizung
Warum sehe ich diese Anzeige? – Du siehst diese Anzeige basierend auf Ihrer Navigation auf unserer Website und den Suchkriterien, die du verwendet hast.
Wärme
Strom
Energieausweistyp
Verbrauchsausweis
Gebäudetyp
Nicht-Wohngebäude
Baujahr laut Energieausweis
1920
Endenergieverbrauch (Wärme)
144,00 kWh/(m²·a)
Endenergieverbrauch (Strom)
25,00 kWh/(m²·a)
Weitere Energiedaten
Energieträger
Blockheizkraftwerk, Gas, Solar
Heizungsart
Zentralheizung
Details
Weitere Informationen
Büro
Bürosphäre - Das Zentrum für junge Unternehmer(innen) in der Dresdner Neustadt.
In diesem Fall: ein modernes, helles großes Büro (Großraumbüro) für kreative und smarte Köpfe mit 240m² inkl. anteiliger Gemeinschaftsflächen. Die z.T. bereits vorhandene Möblierung (hochwertige Schreibtische etc.) steht...
Anbieter der Immobilie

TnT-Real Estate GmbH
Dammweg 6, 01097 Dresden
Online-ID: 2mkn25k
Finde Angebote wie dieses
Hier geht es zu unserem Impressum, den Allgemeinen Geschäftsbedingungen, den Hinweisen zum Datenschutz und nutzungsbasierter Online-Werbung.