
Nowatzki Immobilien GmbH & Co. KG
Herrn Detlef NOWATZKI
+49 ···
Nr. anzeigenPreise & Kosten
Provision für Käufer
KEINE
Lage
Hervorragende ländliche Lage mit Blick über die Wiesen und Felder Mecklenburgs. Göldenitz befindet sich in der Nähe von Schwaan bei Laage/ Rostock. Schwaan mit seinen ca. 6000 Einwohnern, ist ca. 20 km südlich von der Hansestadt Rostock im Landkreis Rostock gelegen und zeichnet sich durch seine zentrale Lage als idealer...
Das Haus
Kategorie
Einfamilienhaus
Baujahr
1995
Bezug
sofort
Energie & Heizung
Warum sehe ich diese Anzeige? – Du siehst diese Anzeige basierend auf Ihrer Navigation auf unserer Website und den Suchkriterien, die du verwendet hast.
Energieausweistyp
Verbrauchsausweis
Gebäudetyp
Wohngebäude
Baujahr laut Energieausweis
1995
Wesentliche Energieträger
Gas
Gültigkeit
15.09.2020 bis 15.09.2030
Endenergieverbrauch
105,10 kWh/(m²·a) - Warmwasser enthalten
Weitere Energiedaten
Haustyp
Massivhaus
Energieträger
Gas
Details
Objektbeschreibung
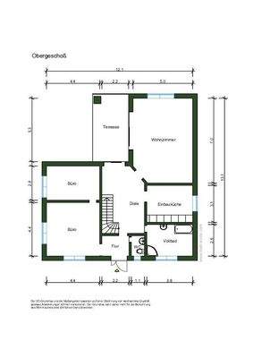
Solide und massiv gebautes Einfamilienhaus mit schönem Ausblick in ruhiger Lage. Im Erdgeschoss befinden sich ein Vollbad, eine Einbauküche, das Wohnzimmer und das zentrale Esszimmer. Hier angrenzend liegt ein separater Bürotrakt mit zwei Räumen (40m²) und einem Gäste-WC. Im Obergeschoß sind 3 Schlafräume und ein ein Duschbad...
Ausstattung
- Baujahr 1996
- Massivbauweise
- Tondachpfanne
- isolierverglaste Kunststofffenster; Veluxholzfenster im Dachgeschoß
- Bodenbelag im Erdgeschoß Steinzeug, im Dachgeschoß Laminat
- Kaminanschluß im Erdgeschoß
- 4 Stellplätze auf dem Grundstück
- überdachte Terrasse
- Satellitenanlage
- 3 Kammer...
Preisinformation
4 Stellplätze
Weitere Informationen
Stichworte
Stellplatz vorhanden, Nutzfläche: 65,00 m², Anzahl der Schlafzimmer: 4, Anzahl der Badezimmer: 2, Anzahl der separaten WCs: 2, Anzahl Balkone: 1, Anzahl Terrassen: 1, Gartenfläche: 1.400,00 m², 2 Etagen, Lage im Ort, modernisiert: 2015
Sonstiges/Wohnen: seniorengerechtes Wohnen
Dokumente
Anbieter der Immobilie
Online-ID: 2mkn95y
Referenznummer: 7797#2tt845
Finde Angebote wie dieses
Hier geht es zu unserem Impressum, den Allgemeinen Geschäftsbedingungen, den Hinweisen zum Datenschutz und nutzungsbasierter Online-Werbung.