

EDE INVEST GmbH & Co. KG
Frau Susanne Dettinger-Klemm
+49 ···
Nr. anzeigenPreise & Kosten
Provision für Käufer
PROVISIONSFREI inkl. MwSt.
Lage
Das Neubau befindet sich in einer ruhigen und gepflegten Wohngegend von Untermenzing. Die täglichen Einkäufe können bei Edeka, Netto City, Menzinger Fruchthaus oder im Einkaufszentrum Karwinski Höfe. An Feinkostläden, Cafés und Gaststätten stehen Ihnen eine Vielfalt in der unmittelbaren Umgebung zur Auswahl.
Der...
Das Haus
Baujahr
2026
Bezug
Ende 2026
Energie & Heizung
Warum sehe ich diese Anzeige? – Du siehst diese Anzeige basierend auf Ihrer Navigation auf unserer Website und den Suchkriterien, die du verwendet hast.
Energieausweistyp
Verbrauchsausweis
Gebäudetyp
Wohngebäude
Baujahr laut Energieausweis
2026
Wesentliche Energieträger
LUFTWP
Gültigkeit
bis 14.11.2035
Effizienzklasse
A
Endenergieverbrauch
49,90 kWh/(m²·a)
Weitere Energiedaten
Heizungsart
Fußbodenheizung, Luft-/Wasser-Wärmepumpe
Details
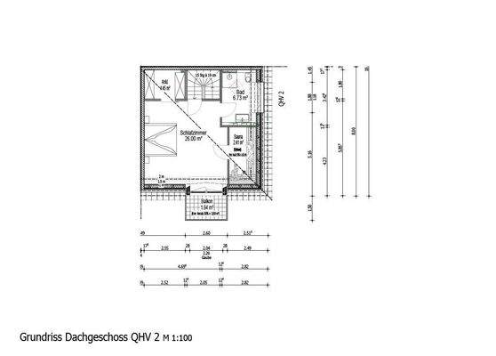
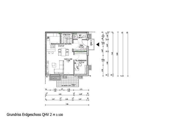
Objektbeschreibung
In einer herrlich zentralen Wohnlage in Untermenzing entsteht Ihr neues Zuhause, mit einem großen Garten. Zusammen mit Ihnen werden die Innenräume, mit einem gesteigerten Augenmerk auf Qualität, ganz nach Ihren individuellen Wünschen gestaltet: stilvolle Böden, klassische Armaturen bekannter Markenhersteller und attraktive...
Ausstattung
- Realgeteilt
- In Massivbauweise
- Ziegelmauerwerk mit 30 cm bzw. 36,5 cm Außenwände
- Innenwände mit 17,50 cm und 11,5 cm Ziegelmauerwerk, bzw. Trockenbauwände
- Dreifach-wärmeschutzverglaste Fenster
- Zum Teil bodentiefe Fenster im EG & OG
- Elektrische Rollläden
-...
Preisinformation
1 Stellplatz
Weitere Informationen
Sonstiges
Alle in diesem Exposé verwendeten Angaben beruhen auf Informationen von Dritten (z.B. Eigentümer, Hausverwaltung, etc.) und daher freibleibend und ohne jegliche Gewähr. Zahlenangaben sind immer als ca-Angaben zu verstehen. Irrtum, Änderungen, Zwischenverkauf oder Zwischenvermietung bleiben vorbehalten. Die...
Anbieter der Immobilie
EDE INVEST GmbH & Co. KG
Bavariaring 18, 80336 München

Online-ID: 2mknf5f
Referenznummer: 4951
Finde Angebote wie dieses
Hier geht es zu unserem Impressum, den Allgemeinen Geschäftsbedingungen, den Hinweisen zum Datenschutz und nutzungsbasierter Online-Werbung.