
AMA Immobilien GmbH
Ard de Jong
015 ···
Nr. anzeigenPreise & Kosten
Provision für Käufer
3,57%
Der Makler-Vertrag mit uns kommt durch die Bestätigung der Inanspruchnahme unserer Maklertätigkeit in Textform zustande. Weitere Informationen siehe Provisionshinweis.
Lage
Diese Immobilie befindet sich in der charmanten Gemeinde Barsbüttel und bietet eine hervorragende Anbindung an öffentliche Verkehrsmittel und wichtige Einrichtungen. Nur 4 Gehminuten entfernt finden Sie die nächste Haltestelle des öffentlichen Personennahverkehrs (ÖPNV), die Sie bequem durch die Region bringt. Der nächste...
Die Wohnung
Wohnungslage
Erdgeschoss
Bezug
nach Absprache
Wohnanlage
Energie & Heizung
Warum sehe ich diese Anzeige? – Du siehst diese Anzeige basierend auf Ihrer Navigation auf unserer Website und den Suchkriterien, die du verwendet hast.
Energieausweistyp
Verbrauchsausweis
Gebäudetyp
Wohngebäude
Wesentliche Energieträger
Fernwärme
Effizienzklasse
C
Endenergieverbrauch
98,00 kWh/(m²·a) - Warmwasser enthalten
Weitere Energiedaten
Energieträger
Fernwärme
Details
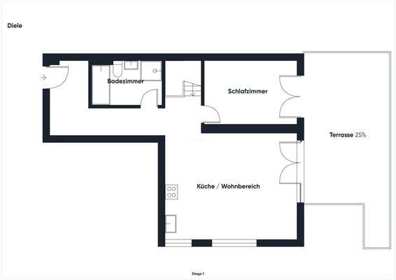
Objektbeschreibung
Entdecken Sie Ihr neues Zuhause in dieser in 2020 komplett modernisierte Erdgeschosswohnung.
Mit einer Wohnfläche von 95,44 m² bietet diese Immobilie 4 Zimmer, 3 Schlafzimmer und 1 Badezimmer. Die Wohnung befindet sich im Erdgeschoss eines gepflegtes Gebäudes mit insgesamt 20 Wohneinheiten.
Die Highlights dieser...
Ausstattung
- Innenräume komplett modernisiert
- Biovinyl mit hoher Abriebsklasse (Wineo)
- Appgesteuerte, elektrische Markise (2025)
- Appgesteuerte, elektrische Rolläden (2020)
- Einbruchschutz aller Fenster und Türen (2020)
- Fliegen- bzw Pollengitter massgefertigt (2020)
- Neues Badezimmer mit Wanne und Dusche
-...
Preisinformation
1 Stellplatz
Weitere Informationen
Provisionshinweis
3,57%
Der Makler-Vertrag mit uns kommt durch die Bestätigung der Inanspruchnahme unserer Maklertätigkeit in Textform zustande. Die Höhe der Courtage beträgt für beide Parteien (Eigentümer und Käufer) jeweils 3,57 % auf den Kaufpreis inklusive gesetzlicher Mehrwertsteuer und ist bei notariellem...
Anbieter der Immobilie
AMA Immobilien GmbH
Bei den Teichen 35, 21339 Lüneburg
Online-ID: 2mknm57
Referenznummer: AMA 100
Finde Angebote wie dieses
Hier geht es zu unserem Impressum, den Allgemeinen Geschäftsbedingungen, den Hinweisen zum Datenschutz und nutzungsbasierter Online-Werbung.