

TM Immobilien Paderborn
Herr Thorsten Möller
052 ···
Nr. anzeigenPreise & Kosten
Provision für Käufer
3,57 % inkl. MwSt.
Lage
Ihre neue, flexibel nutzbare Wohn- und Gewerbeimmobilie befindet sich nur wenige Minuten vom Zentrum Detmolds entfernt im schönen und beschaulichen Ortsteil Spork-Eichholz.
Der Ortsteil gehört zum zentralen Stadtgebiet von Detmold. Hier verbindet sich städtisches Umfeld mit ländlichen Anteilen.
Südlich befindet...
Das Haus
Kategorie
Mehrfamilienhaus
Bezug
nach Vereinbarung
Energie & Heizung
Warum sehe ich diese Anzeige? – Du siehst diese Anzeige basierend auf Ihrer Navigation auf unserer Website und den Suchkriterien, die du verwendet hast.
Energieausweistyp
Verbrauchsausweis
Gebäudetyp
Wohngebäude
Baujahr laut Energieausweis
1970
Wesentliche Energieträger
GAS
Gültigkeit
bis 25.07.2030
Effizienzklasse
E
Endenergieverbrauch
153,80 kWh/(m²·a)
Weitere Energiedaten
Haustyp
Massivhaus
Energieträger
Gas
Details
Objektbeschreibung
Wahrscheinlich sind Sie schon länger auf der Suche nach einer vielseitigen, individuellen Immobilie im Raum Detmold, die Ihnen eine Vielzahl an Möglichkeiten sowohl zum Wohnen als auch als Gewerbe bietet.
Dann haben wir nun genau das Passende für Sie hier im Angebot.
Ein 1970 erbautes und gut gepflegtes, in vielen...
Ausstattung
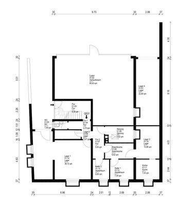
* Wohn- und Geschäftshaus aus 1970
* Gewerbe/Ladenfläche im Souterrain, derzeit leerstehend, ca. 176 m² Fläche
* Wohnung im EG mit ca. 140 m² Wohnfläche
* zusätzlicher Wohnraum im 1. OG, ca. 145 m², vermietet
* ausgebautes Dachgeschoss
* ca. 10 Freiplätze für Pkw
* Gasheizung aus 2013
*...
Preisinformation
10 Stellplätze
Weitere Informationen
Sonstiges
Es liegt ein Energieverbrauchsausweis vor.
Dieser ist gültig bis 25.7.2030.
Endenergieverbrauch beträgt 153.80 kwh/(m²*a).
Wesentlicher Energieträger der Heizung ist Gas.
Das Baujahr des Objekts lt. Energieausweis ist 1970.
Die Energieeffizienzklasse ist E.
Bitte beachten Sie, dass bei einer...
Anbieter der Immobilie

Online-ID: 2mkps5z
Referenznummer: TMIP.K1005-2-W
Finde Angebote wie dieses
Hier geht es zu unserem Impressum, den Allgemeinen Geschäftsbedingungen, den Hinweisen zum Datenschutz und nutzungsbasierter Online-Werbung.