
K. Eis Finanzhaus Deutschland GmbH
020 ···
Nr. anzeigenPreise & Kosten
Provision für Käufer
3,57 % inkl. MwSt.
Lage
Das Grundstück befindet sich in einer gewachsenen Wohngegend mit überwiegend Ein- und Mehrfamilienhäusern. Durch die ruhige Lage in einer Nebenstraße genießen Sie ein hohes Maß an Privatsphäre, gleichzeitig profitieren Sie von der sehr guten Infrastruktur und Anbindung in die umliegenden Städte.
Velbert Mitte liegt im...
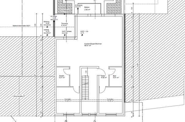
Die Wohnung
Bezug
2027
Wohnanlage
Energie & Heizung
Warum sehe ich diese Anzeige? – Du siehst diese Anzeige basierend auf Ihrer Navigation auf unserer Website und den Suchkriterien, die du verwendet hast.
Energieausweis: für diesen Gebäudetyp nicht notwendig
Weitere Energiedaten
Heizungsart
offener Kamin
Details
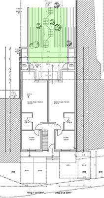
Objektbeschreibung
In Velbert entsteht ein modernes, barrierearmes Mehrfamilienhaus mit insgesamt vier Wohneinheiten auf einem ca. 501 m² großen Grundstück in gefragter Wohnlage. Das Neubauprojekt überzeugt durch klare Architektur, hochwertige Bauweise und ein durchdachtes Wohnkonzept, das modernen Komfort mit energieeffizientem Wohnen...
Ausstattung
. Wohnfläche: ca. 109 m²
. Grundstücksfläche: ca. 501 m²
. Garten mit ca. 230 m²
. Unterstützung bei der Umsetzung mit kooperierenden Bauunternehmern
. Fußbodenheizung
. Energieeffizientes Bauen
. Dreifachverglasung
. Wärmepumpe
. PV Anlage
. Elektronische Rollläden
. Moderne...
Preisinformation
4 Stellplätze
Weitere Informationen
Sonstiges
Die Angaben zu Größe, Bebaubarkeit und Bestand beruhen auf den Informationen des Eigentümers und dienen als Orientierung. Eine verbindliche Aussage zur möglichen Wohnfläche, Bauweise und zum Umgang mit dem Bestandsgebäude ist mit dem zuständigen Bauamt abzustimmen.
Darüber hinaus verfügen wir über...
Anbieter der Immobilie
Online-ID: 2mkqg5c
Referenznummer: 2453
Finde Angebote wie dieses
Hier geht es zu unserem Impressum, den Allgemeinen Geschäftsbedingungen, den Hinweisen zum Datenschutz und nutzungsbasierter Online-Werbung.