

HONNEF Immobilien
Frau Mandy Brendel
036 ···
Nr. anzeigenPreise & Kosten
Kaution
1.470,00
Warum sehe ich diese Anzeige? – Du siehst diese Anzeige basierend auf Ihrer Navigation auf unserer Website und den Suchkriterien, die du verwendet hast.
Lage
Die Wohnung liegt direkt im Zentrum, in der Erfurter Straße. Sie erreichen in wenigen Minuten die Haltestellen des öffentlichen Nahverkehrs.
Der Schloßpark lädt zum Verweilen und Erholung in der Freizeit ein.
Die Wohnung
Bezug
sofort
Wohnanlage
Energie & Heizung
Warum sehe ich diese Anzeige? – Du siehst diese Anzeige basierend auf Ihrer Navigation auf unserer Website und den Suchkriterien, die du verwendet hast.
Energieausweistyp
Verbrauchsausweis
Gebäudetyp
Wohngebäude
Baujahr laut Energieausweis
1900
Wesentliche Energieträger
Fernwärme
Gültigkeit
12.08.2018 bis 12.08.2028
Endenergieverbrauch
92,90 kWh/(m²·a) - Warmwasser enthalten
Weitere Energiedaten
Energieträger
Fernwärme
Details
Objektbeschreibung
Kurzbeschreibung
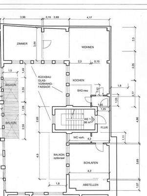
3 Zimmer Wohnung im Zentrum
Objekt
Sie interessieren sich für eine 3 Zimmer Wohnung in einem Wohn- und Geschäftshaus in der Gothaer Innenstadt.
Ausstattung
Die Wohnungen wurden im Zuge der Umnutzung im Jahre 2014 neu saniert.
Es wurden Bäder mit Dusche eingebaut.
Die Wohnung verfügt über einen Balkon in den Nachbar-Innenhof.
Die Wohnräumen haben einen hellen Laminatboden in Holzoptik und die Wände sind weiß gestrichen.
Preisinformation
Nettokaltmiete: 490,00 EUR
Weitere Informationen
Sonstiges
Baujahr: 1900
Befeuerung/Energieträger: Fernwärme
Energieausweistyp: Verbrauchsausweis
Energiekennwert: 92,9 kWh/(m²*a)
Energie mit Warmwasser: Ja
Heizungsart: Fernwärme
Es ist kein Kellerraum zur Wohnung vorhanden.
Anbieter der Immobilie

Online-ID: 2mkqx5j
Referenznummer: 501374
Finde Angebote wie dieses
Hier geht es zu unserem Impressum, den Allgemeinen Geschäftsbedingungen, den Hinweisen zum Datenschutz und nutzungsbasierter Online-Werbung.