
Wurch Immobilien
Herr David Wurch
004 ···
Nr. anzeigenPreise & Kosten
Provision für Käufer
Bitte beachte, das Angebot kann bei Vertragsabschluss die Zahlung einer Provision beinhalten. Weitere Informationen erhältst Du vom Anbieter.
Lage
Diese Immobilie befindet sich in unmittelbarer Nähe zum Stadtkern Breisach. Die Stadt Breisach verfügt über ca. 16.000 Einwohner.
Breisach am Rhein (alemannisch Brisach am Rhin, französisch Vieux-Brisach) (lat. Brisacum oder Bresacum) ist eine Stadt am Oberrhein an der deutsch-französischen Grenze auf halbem Weg zwischen...
Das Haus
Kategorie
Mehrfamilienhaus
Baujahr
1930
Bezug
ab sofort
Energie & Heizung
Warum sehe ich diese Anzeige? – Du siehst diese Anzeige basierend auf Ihrer Navigation auf unserer Website und den Suchkriterien, die du verwendet hast.
Energieausweistyp
Bedarfsausweis
Gebäudetyp
Wohngebäude
Wesentliche Energieträger
GAS
Gültigkeit
bis 27.05.2020
Endenergiebedarf
326,00 kWh/(m²·a)
Weitere Energiedaten
Energieträger
Gas
Details
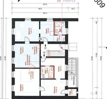
Objektbeschreibung
Mehrfamilienhaus mit 8 fertigzustellenden Wohneinheiten in zentraler Lage von Breisach
Zur Vermietbarkeit benötigen Sie noch zwischen 200.000-300.000 € Sanierungssumme. Anschließend erhalten Sie 8 Wohneinheiten in optimaler Größe in guter Lage der Stadt Breisach.
Das Gebäude verfügt über einen Keller sowie über...
Ausstattung
Kurz und Knapp:
+ Nach Fertigstellung 8 Wohneinheiten
+ Zentrale Lage
+ Mehrfamilienhaus
+ Bauantrag + Abgeschlossenheitsbescheinigung liegt bereits vor
Preisinformation
2 Stellplätze
Weitere Informationen
Sonstiges
Für Besichtigungen oder weitere Fragen stehen wir Ihnen gerne zur Verfügung.
Der Energieausweis befindet sich derzeit noch in Bearbeitung und wird unverzüglich nach Erhalt beigefügt.
Alle Angaben berufen sich auf den Eigentümer. Wir können somit keine Haftung für die Angaben im Expose...
Anbieter der Immobilie
Wurch Immobilien
Berliner Allee 2, 79110 Freiburg
Online-ID: 2mkrz56
Referenznummer: 987
Finde Angebote wie dieses
Hier geht es zu unserem Impressum, den Allgemeinen Geschäftsbedingungen, den Hinweisen zum Datenschutz und nutzungsbasierter Online-Werbung.