

Schumacher Immobilien Management GmbH
Herr Uwe Schumacher
+49 ···
Nr. anzeigenPreise & Kosten
Provision für Käufer
3,57 % inkl. MwSt.
Der Interessent/spätere Käufer bestätigt dem Makler eine Courtage in Höhe von 3,57 % des Kaufpreises. Diese ist verdient und fällig mit Abschluss des Notarvertrages. Weitere Informationen siehe Provisionshinweis.
Lage
Dieses schöne Haus finden Sie im Ortskern von Birnbach. Die Ortsgemeinde liegt im Landkreis Altenkirchen (Westerwald) im nördlichen Rheinland-Pfalz und gehört der Verbandsgemeinde Altenkirchen-Flammersfeld an.
Die Ortschaft ist weitläufig entlang der Ortsstraße gelegen; prägend sind die zahlreichen Grünflächen, Bachläufe...
Das Haus
Kategorie
Einfamilienhaus
Baujahr
2005
Energie & Heizung
Warum sehe ich diese Anzeige? – Du siehst diese Anzeige basierend auf Ihrer Navigation auf unserer Website und den Suchkriterien, die du verwendet hast.
Energieausweistyp
Bedarfsausweis
Gebäudetyp
Wohngebäude
Baujahr laut Energieausweis
2005
Wesentliche Energieträger
ELEKTRO
Gültigkeit
bis 09.09.2035
Effizienzklasse
A+
Endenergiebedarf
21,54 kWh/(m²·a)
Weitere Energiedaten
Energieträger
Elektro
Heizungsart
Fußbodenheizung
Details
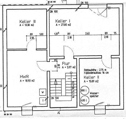
Objektbeschreibung
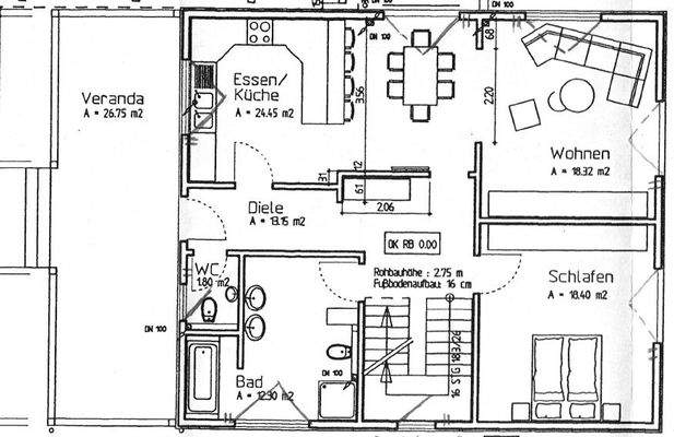
Ein unglaublich schönes Haus mit ca. 180 m² Wohnfläche in Holzständerbauweise mit verzapftem und Kammer getrocknetem Holz hergestellt. Es wurden zudem Leimbinder im Erdgeschoss in der offenen Holzbalkendecke mit einer Deckenhöhe von 2,8 Meter verbaut. Die Raumhöhen im Wohnbereich werden Sie somit begeistern. Gleiches...
Ausstattung
Über den mit Holz belegten Terrassenvorbau treten wir ein, in dieses für die Region außergewöhnliche Wohnhaus. Die ansprechende Diele bietet zur linken Seite hin den Zugang zur Küche, dem Essplatz und Wohnzimmer. Bodentiefe Fenster lassen die Räume in hellem Tageslicht erstrahlen. Die hochwertige Einbauküche mit den...
Preisinformation
2 Carportplätze
2 Garagenstellplätze
Weitere Informationen
Provisionshinweis
3,57 % inkl. MwSt.
Der Interessent/spätere Käufer bestätigt dem Makler eine Courtage in Höhe von 3,57 % des Kaufpreises. Diese ist verdient und fällig mit Abschluss des Notarvertrages. Mit dem Verkäufer haben wir einen Vertrag zur Zahlung der Courtage in gleicher Höhe...
Anbieter der Immobilie

Schumacher Immobilien Management GmbH
Bahnhofstrasse 16, 57610 Altenkirchen

Online-ID: 2mktp54
Referenznummer: 202510431
Finde Angebote wie dieses
Hier geht es zu unserem Impressum, den Allgemeinen Geschäftsbedingungen, den Hinweisen zum Datenschutz und nutzungsbasierter Online-Werbung.