

Holtz Immobilien GmbH
Herr Peter Königstein
004 ···
Nr. anzeigenPreise & Kosten
Kaution
13.680,00
Provision für Mieter
provisionsfrei
Warum sehe ich diese Anzeige? – Du siehst diese Anzeige basierend auf Ihrer Navigation auf unserer Website und den Suchkriterien, die du verwendet hast.
Lage
Gundelfingen ist wegen seiner Lage direkt am stark frequentierten Zubringer Nord und seiner damit auch guten Anbindung an die Innenstadt nicht nur ein beliebter Standort zum Wohnen, sondern auch ein erfolgreicher Gewerbestandort an der nördlichen Stadtgrenze Freiburgs.
Die eigenständige Gemeinde zeichnet sich durch...
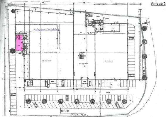
Die Industriefläche
Kategorie
Werkstatt
Geschosse
1 Geschoss
Details
Objektbeschreibung
Sie suchen eine attraktive Fläche für Ihr Kampfsportangebot ?
Gute Raumhöhe, professionelle Belichtung und gut belüftet ?
Zentrale Lage für Freiburg und Umgebung mit ausreichend Parkplätzen ?
Dann sollten Sie sich dieses Angebot genau anschauen:
Diese vielseitig nutzbare Gewerbeeinheit befindet sich im 1...
Ausstattung
Dieses Gewerbeobjekt wurde in moderner Bauweise an einem gut sichtbaren Standort am Eingang des zu Freiburg hin angrenzenden Gewerbegebietes der Gemeinde Gundelfingen errichtet.
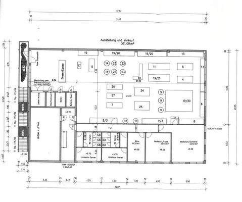
Auf Grund der im Obergeschoss weitgehend freitragenden Dachkonstruktion wurde auf dieser Etage eine ideal nutzbare Ausstellungs- und...
Weitere Informationen
Sonstiges
Die Vermietung erfolgt im Auftrag der Grundstückseigentümer und ist für den Mieter provisionsfrei.
Eine Besichtigung der Mietfläche ist nach Absprache auch kurzfristig möglich.
Es gelten unsere Allgemeinen Geschäftsbedingungen, die im Exposé und auf unserer Homepage veröffentlicht...
Anbieter der Immobilie

Online-ID: 2mkwe59
Referenznummer: 41940
Finde Angebote wie dieses
Hier geht es zu unserem Impressum, den Allgemeinen Geschäftsbedingungen, den Hinweisen zum Datenschutz und nutzungsbasierter Online-Werbung.