

BoHolz Haus
Herr Wolfram Gebhardt
017 ···
Nr. anzeigenPreise & Kosten
Provision für Käufer
provisionsfrei
Lage
Radheim ist ein ruhiger und zugleich lebendiger Ortsteil der Gemeinde Schaafheim im Landkreis Darmstadt-Dieburg. Geprägt von einer gewachsenen Dorfgemeinschaft, viel Grün und einer angenehmen Wohnatmosphäre bietet Radheim ein hohes Maß an Lebensqualität. Einkaufsmöglichkeiten, Kindergarten, Schule sowie ärztliche Versorgung...
Das Haus
Kategorie
Einfamilienhaus
Baujahr
2026
Energie & Heizung
Warum sehe ich diese Anzeige? – Du siehst diese Anzeige basierend auf Ihrer Navigation auf unserer Website und den Suchkriterien, die du verwendet hast.
Weitere Energiedaten
Haustyp
KfW 55
Heizungsart
Fußbodenheizung, Luft-/Wasser-Wärmepumpe
Details
Objektbeschreibung
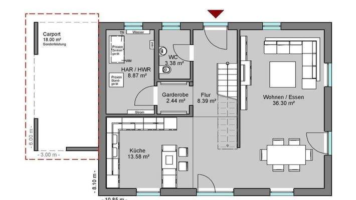
Traumhaftes Einfamilienhaus mit ca. 141 m² Wohnfläche – modern, großzügig und durchdacht geplant
Dieses großzügig konzipierte Einfamilienhaus überzeugt durch eine moderne Architektur, helle Räume und einen perfekt abgestimmten Grundriss. Auf rund 141 m² Wohnfläche bietet es ausreichend Platz für die ganze Familie und...
Ausstattung
Mit unschlagbaren VORTEILEN
* Nachhaltige diffusionsoffene Außenwände mit Holzfaserdämmplatte für sommerlichen Hitzeschutz
* Sicherheitsgeprüfte Haustüre (RC2N Verriegelung) - Schwellenabdichtung mit Folienverbundblech – dies ermöglicht einen schwellenfreien Zugang
* Dachkonstruktion mit einer Schneelast von...
Weitere Informationen
Sonstiges
* Individuell
* Familiär
* Nachhaltig
* Traditionell
*Partnerschaftlich mit voller Kompetenz!
Finanzierungs- und GrundstückSERVICE
Im Preis ist das GRUNDSTÜCK (Erbpacht) und die BODENPLATTE enthalten
GERNE BAUEN WIR DAS HAUS AUCH AUF IHREM EIGENEN GRUNDSTÜCK
Das Angebot versteht sich...
Dokumente
Anbieter der Immobilie
BoHolz Haus
Kantstraße 8, 64668 Rimbach

Online-ID: 2mkxs5q
Referenznummer: GE-14-12.25-64850
Finde Angebote wie dieses
Hier geht es zu unserem Impressum, den Allgemeinen Geschäftsbedingungen, den Hinweisen zum Datenschutz und nutzungsbasierter Online-Werbung.