
VON POLL IMMOBILIEN Hochtaunus - Carola Öhl
Firma VON POLL IMMOBILIEN Shop Hochtaunus
+49 ···
Nr. anzeigenPreise & Kosten
Provision für Käufer
Käuferprovision beträgt 3,57 % (inkl. MwSt.) des beurkundeten Kaufpreises
Lage
Usingen befindet sich inmitten der wunderschönen Natur des Hochtaunus. Die Region wird zu allen Jahreszeiten insbesondere von den Frankfurter Bürgern auf der Suche nach Erholung und Ruhe frequentiert. SIE haben hingegen die Möglichkeit, hier zu leben.
Usingen besteht aus den Stadtteilen Usingen (Zentrum), Eschbach...
Das Renditeobjekt
Baujahr
1989
Energie & Heizung
Warum sehe ich diese Anzeige? – Du siehst diese Anzeige basierend auf Ihrer Navigation auf unserer Website und den Suchkriterien, die du verwendet hast.
Wärme
Energieausweistyp
Verbrauchsausweis
Gebäudetyp
Nicht-Wohngebäude
Baujahr laut Energieausweis
1989
Wesentliche Energieträger
GAS
Gültigkeit
bis 02.05.2035
Endenergieverbrauch (Wärme)
115,10 kWh/(m²·a)
Details
Objektbeschreibung
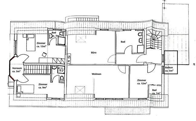
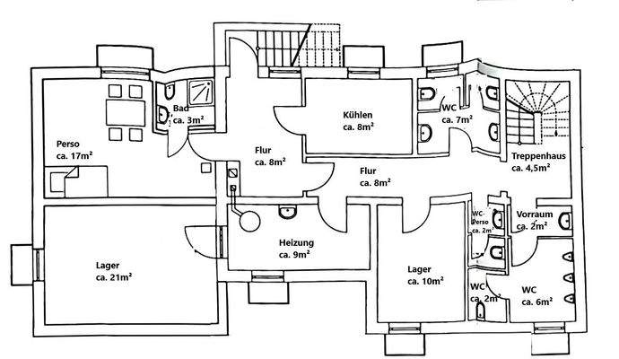
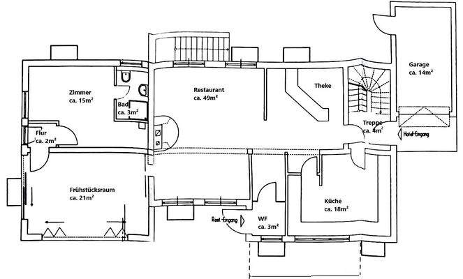
Dieses charmante Hotel befindet sich in einer hervorragenden Lage in Usingen, ideal für Gäste, die die Natur des Taunus genießen oder die Nähe zur Rhein-Metropole schätzen. Das Hotel verfügt über insgesamt 10 gemütliche Einzel- und Doppelzimmer, die einen angenehmen Aufenthalt garantieren.
Ein heller, einladender...
Ausstattung
- 10 vermietbare Einzel- und Doppelzimmer
- private Wohnräume mit Balkon im Dachgeschoss
- Heizung neu aus 2023
- 2-fach verglaste Fenster extra Schallschutz zur Straßenseite
- Schankbereich mit Theke und Kühlelementen
- gemütlicher Gastraum mit Fußbodenheizung im ursprünglichen Gebäudeteil
- Kamin im...
Preisinformation
6 Stellplätze
1 Garagenstellplatz
Weitere Informationen
Sonstiges
Es liegt ein Energieverbrauchsausweis vor.
Dieser ist gültig bis 2.5.2035.
Endenergieverbrauch beträgt 115.10 kwh/(m²*a).
Wesentlicher Energieträger der Heizung ist Gas.
Das Baujahr des Objekts lt. Energieausweis ist 1989.
Die Energieeffizienzklasse ist D.
GELDWÄSCHE: Als...
Anbieter der Immobilie
VON POLL IMMOBILIEN Hochtaunus - Carola Öhl
Kreuzgasse 22, 61250 Usingen
Online-ID: 2mky658
Referenznummer: 25 141 026b
Finde Angebote wie dieses
Hier geht es zu unserem Impressum, den Allgemeinen Geschäftsbedingungen, den Hinweisen zum Datenschutz und nutzungsbasierter Online-Werbung.