

SLS Immobilienpartner GmbH
Herr Cüneyt Demirli
(02 ···
Nr. anzeigenPreise & Kosten
Provision für Käufer
3,57%
Die Provision in Höhe von 3,57% inkl. 19% MwSt ist mit Abschluss des Kaufvertrages verdient und fällig.
Lage
Die Wohnung befindet sich in zentraler Lage von Raesfeld, eingebettet in ein ruhiges, gewachsenes Wohnumfeld mit kurzen Wegen zu allen Einrichtungen des täglichen Bedarfs. Der Ortskern ist fußläufig erreichbar und bietet ein vielfältiges Angebot an Einkaufsmöglichkeiten, Gastronomie, ärztlicher Versorgung sowie Banken und...
Die Wohnung
Wohnungslage
1. Geschoss
Derzeitige Nutzung
vermietet
Wohnanlage
Energie & Heizung
Warum sehe ich diese Anzeige? – Du siehst diese Anzeige basierend auf Ihrer Navigation auf unserer Website und den Suchkriterien, die du verwendet hast.
Energieausweistyp
Bedarfsausweis
Gebäudetyp
Wohngebäude
Wesentliche Energieträger
Gas
Gültigkeit
05.03.2019 bis 04.03.2029
Effizienzklasse
C
Endenergiebedarf
86,10 kWh/(m²·a)
Weitere Energiedaten
Energieträger
Gas
Heizungsart
Zentralheizung
Details
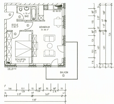
Objektbeschreibung
Die Wohnung liegt im ersten Obergeschoss und wirkt bereits beim Betreten angenehm klar. Durch die offene Küche und den hellen Wohnbereich entsteht ein zusammenhängender Raum, der sich leicht möblieren lässt und eine freundliche, unaufdringliche Atmosphäre vermittelt. Der Balkon, der unmittelbar an den Wohnbereich anschließt...
Preisinformation
1 Stellplatz
Weitere Informationen
Stichworte
Stellplatz vorhanden, Anzahl der Schlafzimmer: 1, Anzahl der Badezimmer: 1, Anzahl Balkone: 1, Bundesland: Nordrhein-Westfalen, 1 Etagen, Distanz zum Flughafen: 69.07, Distanz zum Hauptbahnhof: 8.97, Distanz zum Bus: 0.1
Anbieter der Immobilie
SLS Immobilienpartner GmbH
Ubierweg 2, 46286 Dorsten

Online-ID: 2mkzq5d
Referenznummer: SLS 3155
Finde Angebote wie dieses
Hier geht es zu unserem Impressum, den Allgemeinen Geschäftsbedingungen, den Hinweisen zum Datenschutz und nutzungsbasierter Online-Werbung.