

Bürosuche sharednc.com
Herr/Frau Bürosuche sharednc.com
Kontaktiere den Anbieter schriftlich, es ist keine Telefonnummer hinterlegt.
Preise & Kosten
Provision für Mieter
provisionsfrei
Warum sehe ich diese Anzeige? – Du siehst diese Anzeige basierend auf Ihrer Navigation auf unserer Website und den Suchkriterien, die du verwendet hast.
Lage
In Düsseldorf Flingern-Nord ist man in einer jungen, kreativen aufstrebend, belebten Gegend mit leichtem Kiez-Gefühl gepaart mit vielen Ausgehmöglichkeiten.
Büro-/Praxisfläche
Kategorie
Bürofläche
Bezug
Sofort
Details
Objektbeschreibung
(Objekt-Nr.: 221481 BL)
Objektkategorie: Schreibtischplatz
Titel des Angebots: Schreibtischplätze
***Flexible Konditionen***
Mindestlaufzeit: 1 Monat
Kündigungsfrist: 30 Tage zum Monatsende
Verfügbar ab: Sofort
Achtung: Die hier angegebene Fläche von 4qm entspricht der rein theoretischen...
Ausstattung
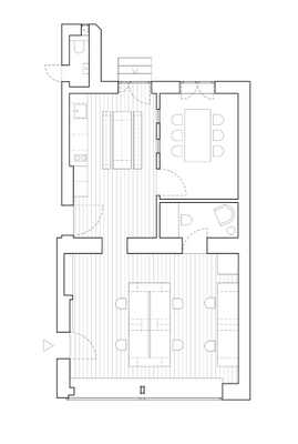
Wir bieten eine Kernsanierte Fläche mit Besprechungsraum samt 65 Zoll Bildschirm und Logitech Meet-Up Kamera, Telefonzelle mit Schreibtisch und Sessel, vollausgestattet Küche und moderner Innenarchitektur.
Die Fläche befindet sich in einem ehemaligen Ladenlokal im Erdgeschoss mit einem 6m langem Schaufenster zu den...
Anbieter der Immobilie
Bürosuche sharednc.com
Hohenzollernring 55, 50672 Köln

Herr/Frau Bürosuche sharednc.com
Dein Ansprechpartner
Kontaktiere den Anbieter schriftlich, es ist keine Telefonnummer hinterlegt.
Online-ID: 2ml2a5t
Referenznummer: 221481 BL
Finde Angebote wie dieses
Hier geht es zu unserem Impressum, den Allgemeinen Geschäftsbedingungen, den Hinweisen zum Datenschutz und nutzungsbasierter Online-Werbung.