

die raumverteiler immobilien GmbH
Herrn Thomas Jedlitschka
080 ···
Nr. anzeigenPreise & Kosten
Kaution
2.000,00
Provision für Mieter
Bitte beachte, das Angebot kann bei Vertragsabschluss die Zahlung einer Provision beinhalten. Weitere Informationen erhältst Du vom Anbieter.
Warum sehe ich diese Anzeige? – Du siehst diese Anzeige basierend auf Ihrer Navigation auf unserer Website und den Suchkriterien, die du verwendet hast.
Lage
Bruckmühl ist mit etwa 17.000 Einwohnern im Mangfalltal direkt vor dem Alpenpanorama gelegen. Die Gemeinde Bruckmühl befindet sich im westlichen Landkreis Rosenheim (Rosenheim etwa 19 km entfernt).
Der Bahnhof (Linie: Holzkirchen - Rosenheim - Salzburg - Innsbruck) ist in Reichweite; die nächste S-Bahnstation ist in...
Büro-/Praxisfläche
Kategorie
Bürofläche
Baujahr
1986
Bezug
sofort
Energie & Heizung
Warum sehe ich diese Anzeige? – Du siehst diese Anzeige basierend auf Ihrer Navigation auf unserer Website und den Suchkriterien, die du verwendet hast.
Wärme
Energieausweistyp
Verbrauchsausweis
Gebäudetyp
Nicht-Wohngebäude
Wesentliche Energieträger
OEL
Gültigkeit
bis 01.09.2029
Endenergieverbrauch (Wärme)
112,00 kWh/(m²·a)
Details
Objektbeschreibung
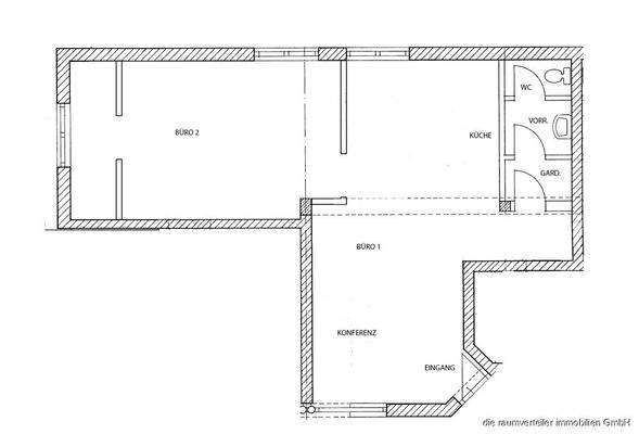
Im beliebten Arkadenhaus in Bruckmühl steht eine attraktive Bürofläche im Erdgeschoss zur Untermiete zur Verfügung. Die Einheit umfasst ca. 82 m² und bietet optimale Voraussetzungen für eine gewerbliche Nutzung durch kleine Unternehmen, Start-ups oder Freiberufler:innen.
Die Bürofläche besteht aus zwei großzügigen...
Ausstattung
Einbauküche
Internetanschluss vorhanden
Drei Stellplätze direkt am Gebäude
Großzügige Fensterflächen mit viel Tageslicht
Gepflegtes, ruhiges Umfeld im Arkadenhaus
Die Untermiete ist befristet bis zum 30.09.2026.
Das Büro steht bereits leer und kann jederzeit bezogen werden.
-...
Preisinformation
3 Stellplätze
Nettokaltmiete: 1.100,00 EUR
Weitere Informationen
Sonstiges
Zum erfolgreichen Immobilienverkauf mit uns!
Herzlich willkommen bei der raumverteiler immobilien GmbH in Bruckmühl. Wir sind Ihr Premium Immobilienmakler, wenn es um die Beratung oder den Verkauf einer hochwertigen Immobilie in der Region von Rosenheim über Bad Aibling, Feldkirchen-Westerham bis nach...
Anbieter der Immobilie
die raumverteiler immobilien GmbH
Kirchdorfer Strasse 14c, 83052 Bruckmühl

Online-ID: 2ml2g5e
Referenznummer: TJ-171025-4
Finde Angebote wie dieses
Hier geht es zu unserem Impressum, den Allgemeinen Geschäftsbedingungen, den Hinweisen zum Datenschutz und nutzungsbasierter Online-Werbung.