
Crozilla.com
Opereta
+38 ···
Nr. anzeigenPreise & Kosten
Provision für Käufer
Bitte beachte, das Angebot kann bei Vertragsabschluss die Zahlung einer Provision beinhalten. Weitere Informationen erhältst Du vom Anbieter.
Die Wohnung
Wohnungslage
1. Geschoss
Wohnanlage
Details
Objektbeschreibung
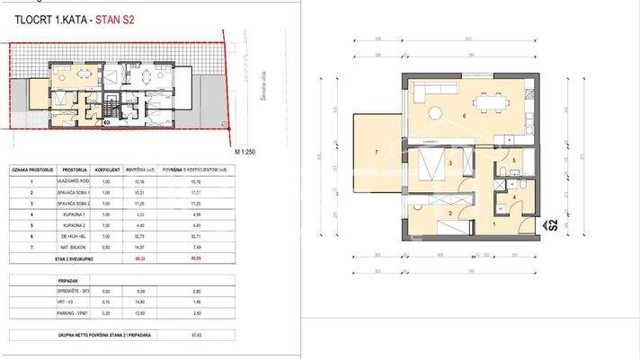
PRODAJA, STAN, Velika Gorica-centar 80,85m2
S2 ZG A 3 soban stan u novogradnji. Odlicna urbana vila visoko kvalitetne gradnje, sa samo cetiri stana. Luksuzno opremljena: alu profili, el. podizaci roleta, dizalica topline, podno grijanje, visokokvallitetna keramika.
U cijeni je spremiste, garazno parkirno mjesto i vrt...
Weitere Informationen
Stichworte
Anzahl der Schlafzimmer: 2, Anzahl der Badezimmer: 2
Anbieter der Immobilie
Crozilla.com
Nova cesta 60, 10000 ZAGREB
Online-ID: 2ml4r5t
Referenznummer: 18888451_0
Finde Angebote wie dieses
Hier geht es zu unserem Impressum, den Allgemeinen Geschäftsbedingungen, den Hinweisen zum Datenschutz und nutzungsbasierter Online-Werbung.