
Bade u. Henning Immobilien GmbH
052 ···
Nr. anzeigenPreise & Kosten
Kaution
3.864,00
Warum sehe ich diese Anzeige? – Du siehst diese Anzeige basierend auf Ihrer Navigation auf unserer Website und den Suchkriterien, die du verwendet hast.
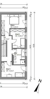
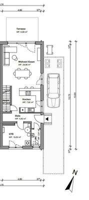
Das Haus
Kategorie
Doppelhaushälfte
Baujahr
2025
Bezug
01.01.2026
Details
Objektbeschreibung
Willkommen in Ihrem neuen Zuhause mitten in der begehrten Stadtheide!
Genießen Sie das Gefühl von Freiheit und Geborgenheit in dieser modernen Doppelhaushälfte. Mit lichtdurchfluteten Räumen, einem offenen Wohnkonzept und einem eigenen Garten bietet dieses Haus alles, was Familienherzen höherschlagen lässt. Hier...
Preisinformation
1 Stellplatz, Miete: 60,00 EUR
Weitere Informationen
Stichworte
Anzahl Terrassen: 1, Bundesland: Nordrhein-Westfalen
Anbieter der Immobilie
Online-ID: 2ml6j5a
Referenznummer: 0-6250
Finde Angebote wie dieses
Hier geht es zu unserem Impressum, den Allgemeinen Geschäftsbedingungen, den Hinweisen zum Datenschutz und nutzungsbasierter Online-Werbung.