
Koch Immobilien, Inh. Dipl.-Ing. Jens-Uwe Koch
Herr Klaus Neunübel
(03 ···
Nr. anzeigenPreise & Kosten
Provision für Käufer
4,000 % inkl. MwSt.
Lage
Das Einfamilienhaus befindet sich in Halle-Nietleben, hier nur wenige Gehminuten vom Heidesee und dem großen Stadtwald Dölauer Heide entfern.
Alle Versorger, Kita, Schulen und Ärzte, Einkaufen sind in der Umgebung zu finden.
Sehr gute Verkehrsanbindung über die Bundesstraße B 80 und die Autobahn A 143 sind vorhanden...
Das Haus
Kategorie
Doppelhaushälfte
Baujahr
1938
Bezug
01.02.2026
Energie & Heizung
Warum sehe ich diese Anzeige? – Du siehst diese Anzeige basierend auf Ihrer Navigation auf unserer Website und den Suchkriterien, die du verwendet hast.
Energieausweistyp
Bedarfsausweis
Gebäudetyp
Wohngebäude
Wesentliche Energieträger
Erdgas
Gültigkeit
16.09.2025 bis 15.09.2035
Effizienzklasse
E
Endenergiebedarf
143,50 kWh/(m²·a)
Weitere Energiedaten
Energieträger
Gas
Details
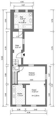
Objektbeschreibung
Die sanierte Doppelhaushälfte liegt sehr ruhig in einer Sackgasse, hier in der Siedlung Neuglück 15. Es handelt sich um ein kleines Wohngebiet im alten Ortsteil von Nietleben, welches in den 1930er Jahren entstanden ist. Das Haus wurde 1938 erbaut und ab 1996 fortlaufend saniert. Die Lage Nietleben ist sehr gefragt, da der...
Preisinformation
1 Stellplatz
2 Garagenstellplätze
Weitere Informationen
Stichworte
Garage vorhanden, Stellplatz vorhanden, Gesamtfläche: 77,00 m², Anzahl Terrassen: 2, Bundesland: Sachsen-Anhalt, Lage im Wohngebiet
Anbieter der Immobilie
Online-ID: 2ml6l5n
Referenznummer: 0-8173195
Finde Angebote wie dieses
Hier geht es zu unserem Impressum, den Allgemeinen Geschäftsbedingungen, den Hinweisen zum Datenschutz und nutzungsbasierter Online-Werbung.