
McMakler GmbH
Ihr McMakler Team
080 ···
Nr. anzeigenPreise & Kosten
Provision für Käufer
Die Provision i.H.v. 3,57 % inkl. MwSt. ist mit Kaufvertragsbeurkundung fällig, sofern der Verkaufspreis über 83.000,00 € liegt.
Liegt der Verkaufspreis dagegen bei/unter 83. Weitere Informationen siehe Provisionshinweis.
Lage
Lage: Ruhige Feldrandlage mit Gelegenheit zu Entspannung
Bildung und Betreuung: Mehreren Kindergärten und einigen Schulen in ca. 6 km bis ca. 9 km Entfernung
Nahversorgung: Anlaufstellen wie Supermarkt, Apotheke, Postfiliale und Bankfiliale in einem Radius von max. 6 km
Anbindung: Bushaltestelle und Autobahn gut...
Das Renditeobjekt
Baujahr
1900
Bezug
ab sofort
Energie & Heizung
Warum sehe ich diese Anzeige? – Du siehst diese Anzeige basierend auf Ihrer Navigation auf unserer Website und den Suchkriterien, die du verwendet hast.
Energieausweistyp
Bedarfsausweis
Gebäudetyp
Wohngebäude
Baujahr laut Energieausweis
1900
Wesentliche Energieträger
Öl
Effizienzklasse
E
Endenergiebedarf
134,00 kWh/(m²·a)
Weitere Energiedaten
Energieträger
Öl
Heizungsart
Zentralheizung
Details
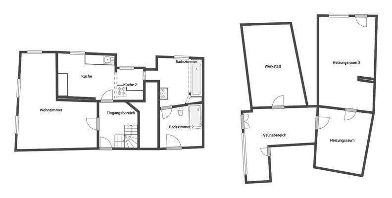
Objektbeschreibung
Objektnr: 1069773
Dieses geschichtsträchtige Einfamilienhaus aus dem Baujahr 1900 befindet sich im Oscherslebener Ortsteil Günthersdorf und verbindet historischen Charme mit durchdachten Modernisierungen. Auf rund 129,40 m² Wohnfläche bietet das Haus fünf gut geschnittene Zimmer, drei Bäder sowie einen großzügigen...
Ausstattung
+ In ruhiger Umgebung in Feldrandlage von Günthersdorf, als Anlegerobjekt und zur privaten Verwendung
+ Tolle Außenbereiche: Ein großzügiger Innenhof bereichert das Erlebnis
+ Die Immobilie präsentiert sich in einem gepflegten Zustand
+ Vielseitig Ausstattung inkl. einer Einbauküche - Wellness-Highlight: Sauna
+...
Weitere Informationen
Provisionshinweis
Die Provision i.H.v. 3,57 % inkl. MwSt. ist mit Kaufvertragsbeurkundung fällig, sofern der Verkaufspreis über 83.000,00 € liegt.
Liegt der Verkaufspreis dagegen bei/unter 83.000,00 €, ist die fest vereinbarte Mindestprovision i.H.v. mind. 5.950,00 € inkl. MwSt. mit Kaufvertragsbeurkundung fällig...
Anbieter der Immobilie
McMakler GmbH
Am Postbahnhof 17, 10243 Berlin
Online-ID: 2ml6t5t
Referenznummer: 1cfb2c86df
Finde Angebote wie dieses
Hier geht es zu unserem Impressum, den Allgemeinen Geschäftsbedingungen, den Hinweisen zum Datenschutz und nutzungsbasierter Online-Werbung.