Drack Immobilien GmbH

Frau Melanie Drack

EINE ADRESSE. KEIN VERSPRECHEN.

€ 845.000
Kaufpreis
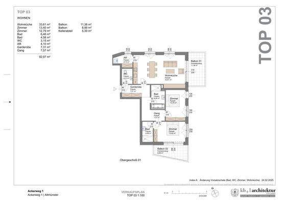
92,97 m²
Wohnfläche ca.
3
Zimmer
Finanzierung berechnen mit durchblicker

Der Anbieter dieses Objekts hat gegenüber der AVIV Germany GmbH als Betreiber dieses Online-Marktplatzes erklärt, nicht als Unternehmer im Sinne des § 1 KSchG zu handeln. Die im Verbraucherschutzrecht der Union verankerten Verbraucherrechte (insbesondere Informationspflichten und Rücktritts- bzw. Widerrufsrechte) finden auf den Vertrag zwischen dem Anbieter des Objekts und Ihnen (dem Interessenten) keine Anwendung.

Gewerblicher Anbieter

Der Anbieter dieses Objekts hat gegenüber der AVIV Germany GmbH als Betreiber dieses Online-Marktplatzes erklärt, als Unternehmer im Sinne des § 1 KSchG zu handeln.

AdresseStraße nicht freigegeben
4813 Altmünster 
Auf Karte ansehen

Preise & Kosten

Kaufpreis € 845.000

Provision für Käufer

3% des Kaufpreises zzgl. 20% USt.

Lage

Die Wohnung

Wohnungslage

1. Geschoss

  • Balkon
  • barrierefrei
  • Böden: Fliesenboden, Parkett
  • Ausstattung: neuwertig

Wohnanlage

  • Baujahr: 2023
  • Zustand: Neubau
  • Personenaufzug

Energie & Heizung

Heizwärmebedarf (HWB)

B

38,00 kWh/(m²·a)

Gesamtenergieeffizienz (fGEE)

A+

0,58

Weitere Energiedaten

Heizungsart

Fußbodenheizung, Luft-/Wasser-Wärmepumpe

Details

Objektbeschreibung

EINE ADRESSE. KEIN VERSPRECHEN.

Es gibt Immobilien, die werden beworben.
Und es gibt Immobilien, die werden verstanden.

Am Ackerweg 1 steht ein Haus, das Haltung zeigt. Zentral gelegen, architektonisch klar positioniert
und hochwertig umgesetzt.
Kein Rückzug, keine Inszenierung - sondern ein urbanes...

Mehr anzeigen

Weitere Informationen

Stichworte
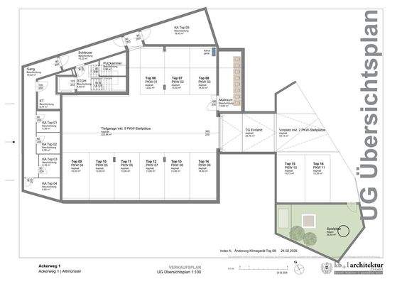
Stellplatz vorhanden, Tiefgarage vorhanden, Anzahl der Badezimmer: 2, Anzahl der separaten WCs: 1, Anzahl Balkone: 2, Balkon-Terrassen-Fläche: 20,37 m², Kellerfläche: 5,39 m², Bundesland: Oberösterreich, 3 Etagen

Anbieter der Immobilie

Drack Immobilien GmbH

Hauptstraße 26/17, 4694 OHLSDORF

user

Frau Melanie Drack

Dein Ansprechpartner

Anbieter-Profil Anbieter-Impressum

Online-ID: 2ml8t5s

Referenznummer: OBGC20251221153513101970edcd486

Finde Angebote wie dieses

imageimageimage

Günstige Immobilienfinanzierung einfach online berechnen

Persönliches Angebot berechnen

Hier geht es zu unserem Impressum, den Allgemeinen Geschäftsbedingungen, den Hinweisen zum Datenschutz und nutzungsbasierter Online-Werbung.