

Bauwerk Capital GmbH & Co. KG
089 ···
Nr. anzeigenPreise & Kosten
Warum sehe ich diese Anzeige? – Du siehst diese Anzeige basierend auf Ihrer Navigation auf unserer Website und den Suchkriterien, die du verwendet hast.
Lage
Die Wahrzeichen Münchens als direkte Nachbarn - dieses Objekt bietet seinen Bewohnern eine unwiederbringliche Lage in der historischen Altstadt Münchens. So liegt der Viktualienmarkt in unmittelbarer Nähe und lädt zum Einkaufen und Genießen ein. Aber auch Marienplatz, Sendlinger und Neuhauser Straße sind nur ein Steinwurf...
Die Wohnung
Bezug
nach Vereinbarung
Wohnanlage
Energie & Heizung
Warum sehe ich diese Anzeige? – Du siehst diese Anzeige basierend auf Ihrer Navigation auf unserer Website und den Suchkriterien, die du verwendet hast.
Energieausweistyp
Verbrauchsausweis
Gebäudetyp
Wohngebäude
Baujahr laut Energieausweis
1999
Gültigkeit
bis 30.04.2024
Endenergieverbrauch
116,00 kWh/(m²·a)
Details
Objektbeschreibung
Das Gebäude am Sebastiansplatz 5 wurde zu Teilen im frühen 16. Jahrhundert erbaut und im Zuge des 18. und 19. Jahrhundert erweitert. Bis heute spiegelt die Fassade den historischen Charakter des Baudenkmals wider, welcher im Inneren aufgegriffen und bei der zeitgemäßen Sanierung respektvoll bewahrt wurde.
Der...
Ausstattung
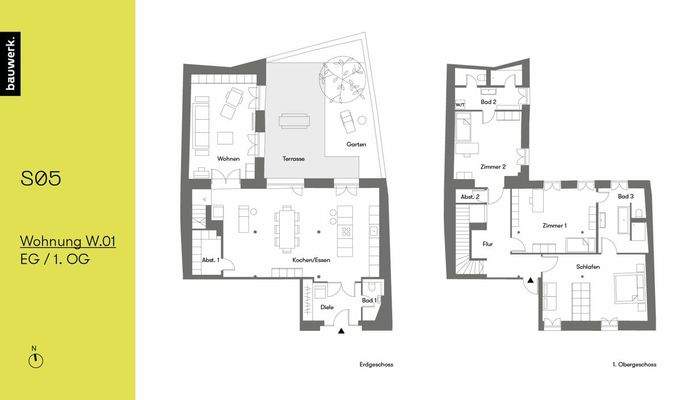
Maisonette-Wohnung:
_ Erdgeschoss + 1. Obergeschoss
_ 5 Zimmer
_ Wohnfläche ca. 242 m²
_ Nutzfläche ca. 289 m²
_ Garten
_ 1 Kellerabteil
Ausstattungs-Details:
_ Hochwertiger Parkettboden
_ Fußbodenheizung
_ Kamin
_ Helle Marken-Einbauküche mit Steinarbeitsplatte, Kochinsel und...
Weitere Informationen
Sonstiges
Die Wohnung steht nach Vereinbarung zur Verfügung. Besichtigungen können nach Absprache wahrgenommen werden.
Parkflächen können im Parkhaus der Schrannenhalle angemietet werden.
Aktueller Energieausweis in Erstellung. Wird bei Anmietung nachgereicht.
Stichworte
Nutzfläche: 288,60 m²...
Dokumente
Anbieter der Immobilie
Online-ID: 2ml945s
Referenznummer: 397-W01
Finde Angebote wie dieses
Hier geht es zu unserem Impressum, den Allgemeinen Geschäftsbedingungen, den Hinweisen zum Datenschutz und nutzungsbasierter Online-Werbung.