
A4RES Advisory GmbH
Team A4RES Property Management GmbH Vermietung
(03 ···
Nr. anzeigenPreise & Kosten
Provision für Mieter
Bitte beachte, das Angebot kann bei Vertragsabschluss die Zahlung einer Provision beinhalten. Weitere Informationen erhältst Du vom Anbieter.
Warum sehe ich diese Anzeige? – Du siehst diese Anzeige basierend auf Ihrer Navigation auf unserer Website und den Suchkriterien, die du verwendet hast.
Lage
Der Gewerbeparkt befindet sich in Singwitz, Fortschrittstraße 2 und liegt ca. 2 km südlich von der Stadtgrenze Bautzen entfernt. Die Autobahn A4 ist in ca. 7 min zu erreichen über die Auffahrt Bautzen West.
Die Stadt Bautzen ist die Kreisstadt des gleichnamigen Landkreises und bildet das wirtschaftliche und kulturelle...
Die Industriefläche
Bezug
nach Vereinbarung
Details
Objektbeschreibung
Kurzbeschreibung
A4RES - individuell nutzbares Gewerbeareal bei Bautzen - 500 bis 3.000m² Flächen anmietbar
Objekt
Der Gewerbepark in Singwitz ist bebaut, vollständig eingezäunt, über eine Haupt-Werkszufahrt anfahrbar und umfasst mehrere Hallen-, Werkstatt- und Bürobereiche.
________________________
Die...
Ausstattung
Ausstattung kurz zusammengefasst:
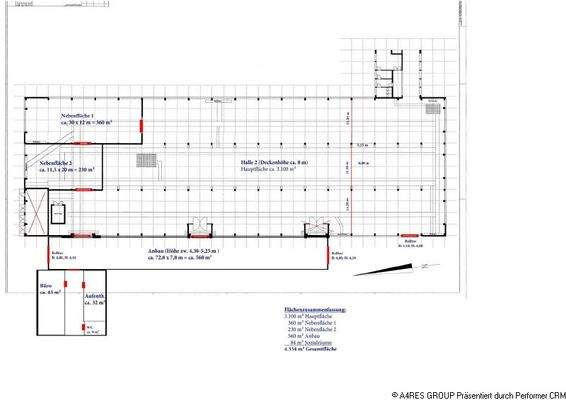
. vermietbare Gesamtnutzfläche: ca. 9,500 m²
. Teilflächen von 500,00 - 3.000,00 m² einzeln vermietbar
. Vollständig eingefriedetes Betriebsgelände
. eine Haupt-Werkszufahrt
. Kaltlagerhallen
. Teilweise Stapler-befahrbare Hallenbereiche
. einfache Stromversorgung
...
Weitere Informationen
Sonstiges
Die angegebenen Preise verstehen sich zuzüglich der gesetzlichen Mehrwertsteuer.
Für Rückfragen oder die Vereinbarung eines Besichtigungstermins wenden Sie sich bitte an:
Herr Grüber, Tel. 03591/3266029
Frau Dartsch, Tel. 03591/3266038
Frau Bartho, Tel...
Anbieter der Immobilie
A4RES Advisory GmbH
Wilthener Straße 39, 02625 Bautzen

Online-ID: 2ml9l5a
Referenznummer: 8132
Finde Angebote wie dieses
Hier geht es zu unserem Impressum, den Allgemeinen Geschäftsbedingungen, den Hinweisen zum Datenschutz und nutzungsbasierter Online-Werbung.