
BUWOG Immobilien Treuhand GmbH
Herr Justin Scharne
Kontaktiere den Anbieter schriftlich, es ist keine Telefonnummer hinterlegt.
Preise & Kosten
in Warmmiete enthalten
Kaution
3.684,78
Warum sehe ich diese Anzeige? – Du siehst diese Anzeige basierend auf Ihrer Navigation auf unserer Website und den Suchkriterien, die du verwendet hast.
Lage
Im südlichen Teil erstreckt sich das Rheingauviertel von der Schiersteiner bis zur Dotzheimer Straße. Der urbane und lebendige Stadtbezirk vereint städtisches Wohnen in Gehweite zur Innenstadt sowie ruhiges Wohnen vor der grünen Kulisse des Wellritztals.
Mit seinem großen Angebot an Kneipen, Gaststätten, Restaurants und...
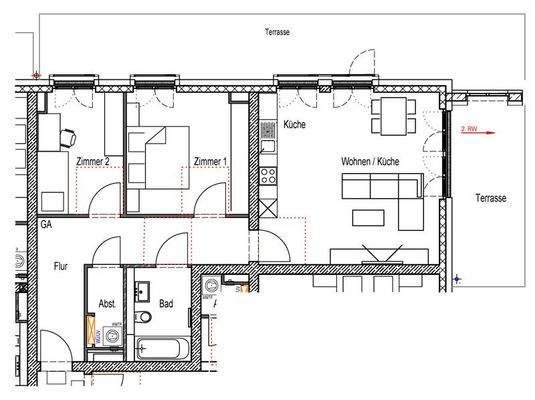
Die Wohnung
Wohnungslage
Erdgeschoss
Bezug
20.01.2026
Wohnanlage
Energie & Heizung
Warum sehe ich diese Anzeige? – Du siehst diese Anzeige basierend auf Ihrer Navigation auf unserer Website und den Suchkriterien, die du verwendet hast.
Energieausweistyp
Bedarfsausweis
Gebäudetyp
Wohngebäude
Baujahr laut Energieausweis
2018
Gültigkeit
bis 18.04.2028
Effizienzklasse
B
Endenergiebedarf
57,00 kWh/(m²·a)
Weitere Energiedaten
Energieträger
Fernwärme
Heizungsart
Fußbodenheizung
Details
Objektbeschreibung
Diese großzügige Erdgeschosswohnung überzeugt durch lichtdurchflutete Räume, edles Parkett und komfortable Fußbodenheizung in allen Wohn- und Schlafbereichen. Die elegante offene Markenküche mit vollständiger Einbauausstattung fügt sich harmonisch in das ansprechende Wohnkonzept ein. Ein praktischer Abstellraum schafft...
Ausstattung
Aufzug; Terrasse; Einbauküche; offene Küche; E-Herd; Abstellraum; Parkett; Fußbodenheizung; Fernwärme; Rollläden elektrisch; Mieterkeller; Gegensprechanlage;
Weitere Informationen
Sonstiges
Hinweise darüber, wie die BUWOG-Immobilien Treuhand Ihre personenbezogenen Daten als Interessent verarbeitet, erhalten Sie unter www.buwog-immobilientreuhand.de/datenschutz. Alle Angaben in diesem Exposé wurden sorgfältig und so vollständig wie möglich gemacht. Gleichwohl kann das Vorhandensein von Fehlern nicht...
Anbieter der Immobilie
BUWOG Immobilien Treuhand GmbH
Fabrikstraße 7, 24103 Kiel
Herr Justin Scharne
Dein Ansprechpartner
Kontaktiere den Anbieter schriftlich, es ist keine Telefonnummer hinterlegt.
Online-ID: 2ml9m5w
Referenznummer: 90-1790450004
Finde Angebote wie dieses
Hier geht es zu unserem Impressum, den Allgemeinen Geschäftsbedingungen, den Hinweisen zum Datenschutz und nutzungsbasierter Online-Werbung.