
McMakler GmbH
Ihr McMakler Team
080 ···
Nr. anzeigenPreise & Kosten
Provision für Käufer
Die Provision i.H.v. 3,57 % inkl. MwSt. ist mit Kaufvertragsbeurkundung fällig, sofern der Verkaufspreis über 83.000,00 € liegt.
Liegt der Verkaufspreis dagegen bei/unter 83. Weitere Informationen siehe Provisionshinweis.
Lage
Lage: Idyllische, ruhige und friedliche Umgebung für Ruhesuchende und Familien
Bildung und Betreuung: Weniger Stress am Morgen dank Kindergarten und Schule in fußläufiger Entfernung
Nahversorgung: Supermarkt und Bankfiliale in weniger als 5 Gehminuten Entfernung
Anbindung: Bahnhof und Autobahn komfortabel per Pkw...
Das Renditeobjekt
Kategorie
Mehrfamilienhaus
Baujahr
1902
Bezug
nach Absprache
Energie & Heizung
Warum sehe ich diese Anzeige? – Du siehst diese Anzeige basierend auf Ihrer Navigation auf unserer Website und den Suchkriterien, die du verwendet hast.
Energieausweistyp
Bedarfsausweis
Gebäudetyp
Wohngebäude
Baujahr laut Energieausweis
1902
Wesentliche Energieträger
Pelletheizung
Effizienzklasse
E
Endenergiebedarf
130,40 kWh/(m²·a)
Weitere Energiedaten
Energieträger
Pellets
Heizungsart
Zentralheizung
Details
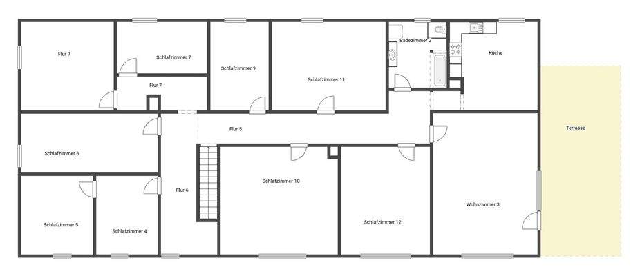
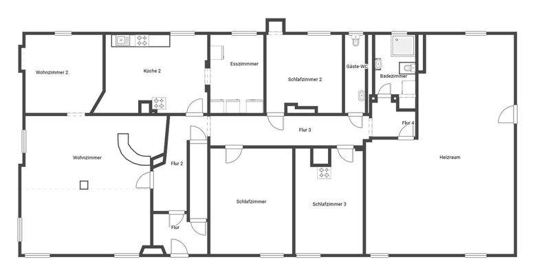
Objektbeschreibung
Objektnr: 1061207
In Steinheim am Albuch, beschaulich und sicher in einer Nebenstraße, präsentiert sich dieses Objekt als ideale Wahl für sowohl Kapitalanleger als auch Eigennutzer. Die idyllische Lage in der Vorstadt bietet eine ruhige und friedliche Umgebung. Das Dach, die Fassade, die Fenster und die Heizung wurden...
Ausstattung
+ Mehrfamilienhaus in attraktiver Lage von Steinheim am Albuch kann eigengenutzt oder vermietet werden dank separat nutzbarer Einheiten als Mehrgenerationshaus geeignet
+ Hohes Rendite- und Vermietungspotenzial
+ Die Immobilie bietet einen gepflegten Allgemeinzustand, der gute Bedingungen bietet - Zuletzt...
Weitere Informationen
Provisionshinweis
Die Provision i.H.v. 3,57 % inkl. MwSt. ist mit Kaufvertragsbeurkundung fällig, sofern der Verkaufspreis über 83.000,00 € liegt.
Liegt der Verkaufspreis dagegen bei/unter 83.000,00 €, ist die fest vereinbarte Mindestprovision i.H.v. mind. 5.950,00 € inkl. MwSt. mit Kaufvertragsbeurkundung fällig...
Anbieter der Immobilie
McMakler GmbH
Am Postbahnhof 17, 10243 Berlin
Online-ID: 2ml9n5t
Referenznummer: b143b00f17
Finde Angebote wie dieses
Hier geht es zu unserem Impressum, den Allgemeinen Geschäftsbedingungen, den Hinweisen zum Datenschutz und nutzungsbasierter Online-Werbung.